Загородный дом
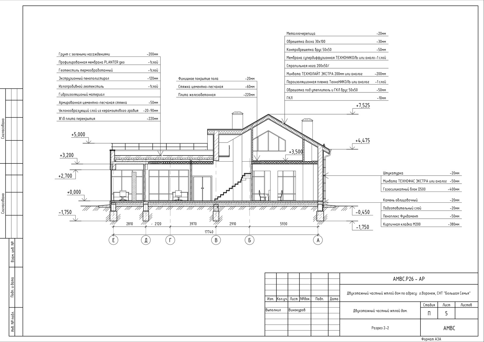
Дом спроектирован для семьи из 4 человек. Общая площадь 198 кв.м. . Основное требование при проектировании - большая площадь остекления, заказчик хотел максимального объединения интерьера с дворовой территорией. . В процессе строительства заказчик изменил часть второго этажа, вместо мансарды была спроектирована эксплуатируемая плоская кровля. На перспективных изображениях вид до внесенных изменений.
Год реализации: 2018
Стоимость проектирования: 135 000 ₽
6 фотографий







