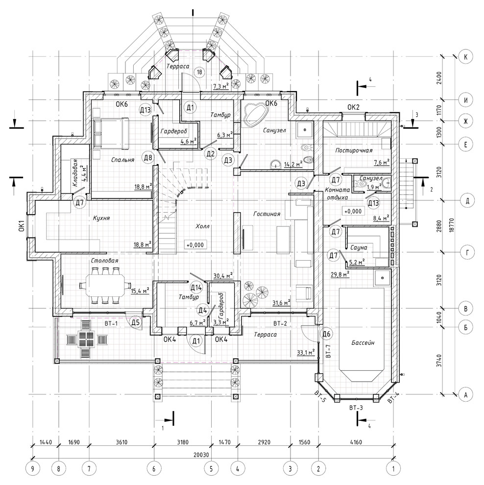
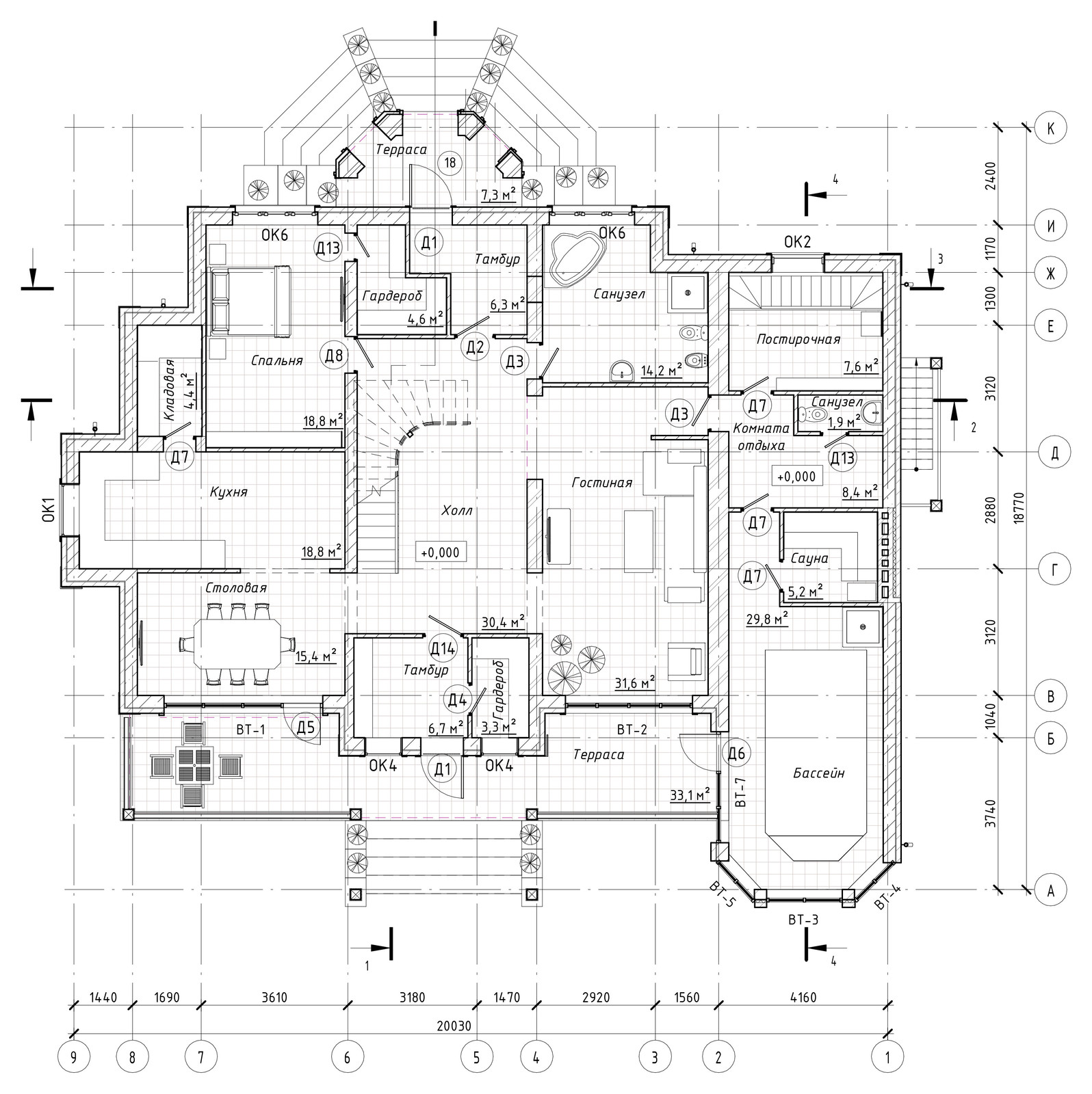
Дом "Родовое гнездо"
Дом, по сути, для четырех семей. Постоянно проживает глава семейства, а в период с апреля по октябрь приезжают еще три семьи - дети с внуками.Расположение в пригороде позволяет вести загородный образ жизни и при этом не терять связь с городом. . Коттедж вмещает в себя пять спален с гардеробами и санузлами, а так же, как общественное пространство, - просторную гостиную, столовую и бассейн с сауной.
Год реализации: 2016
Стоимость проектирования: 135 000 ₽
9 фотографий










