ЗАГОРОДНЫЙ ДОМ С ПАТИО
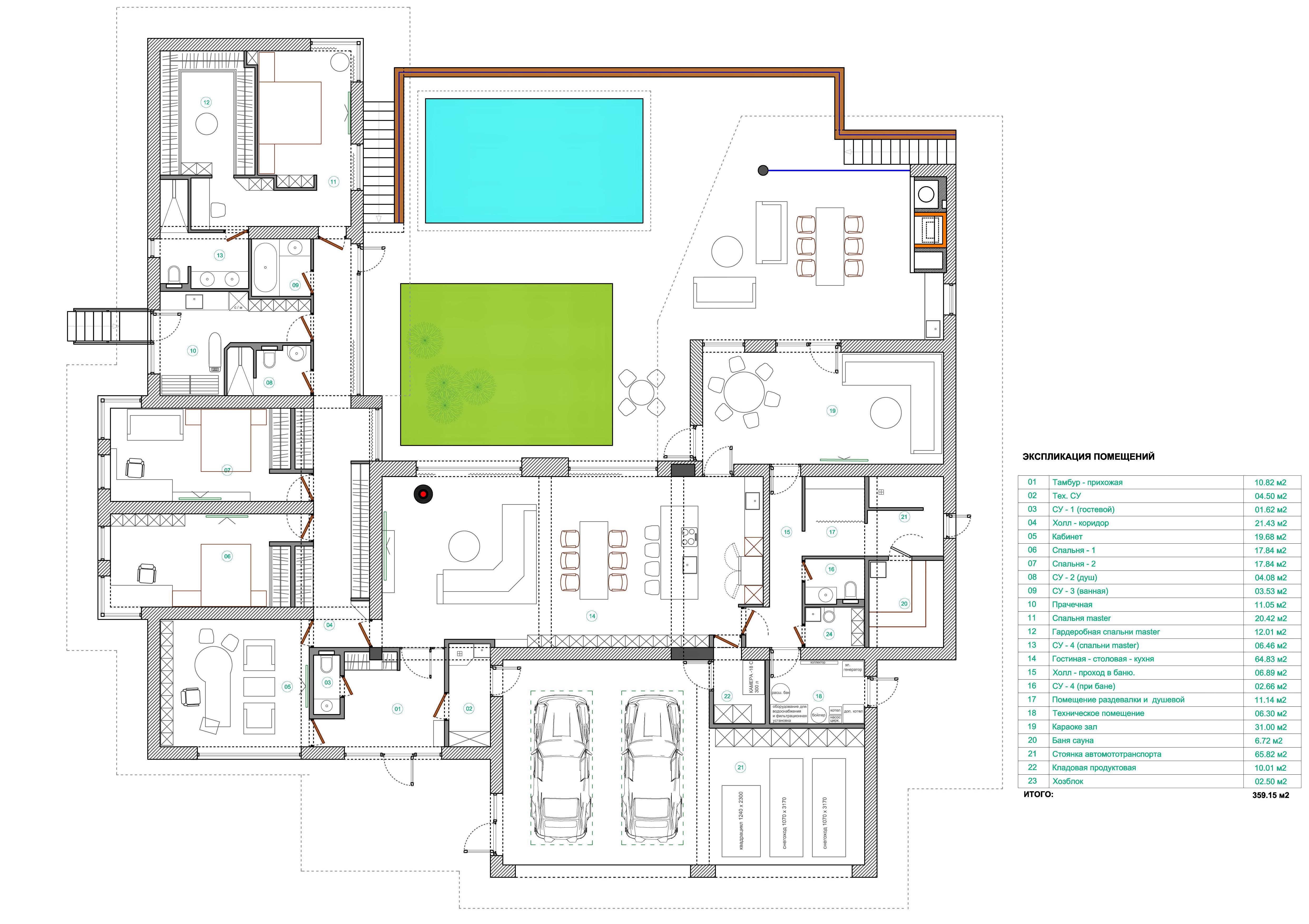
Загородный дом для семьи с двумя детьми. Структура дома состоит из трех частей: главной (центральной) и двумя боковыми "крыльям". Эти три части дома расположены в плане подобно "каре", образуя небольшой внутренний дворик - патио. Открытая часть патио ориентирована на юг, на реку Ангара. Боковые "крылья" защищают патио от ветра, который нередко дует вдоль реки. В левом "крыле" располагаются спальни и сопутствующие им помещения. В центральной части размещены - гараж, прихожая, кабинет, гостиная, столовая и кухня. В правом "крыле" расположены - баня и развлекательная часть (гостиная - караоке и терраса BBQ для отдыха летом). Патио объединяет все три части террасой с открытым бассейном. Гостиная - столовая имеет повышенную высоту и ориентирована панорамными витражами на реку. Окна второго света гостиной - столовой ориентированы на север и дают возможность солнечным лучам попадать в помещение утром. Кухня объединена с гостиной - столовой, но при этом имеет выход в развлекательную часть дома (баня, караоке и BBQ), а так же имеет выход в гараж через продуктовую кладовую.
10 фотографий










