Загородный дом на склоне в Ромашково
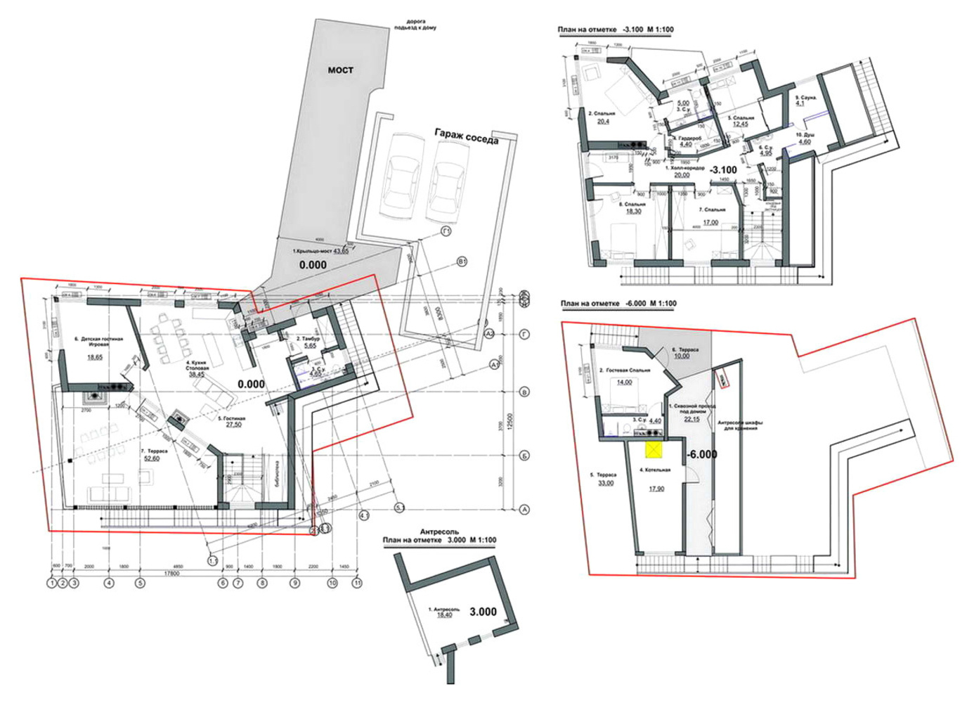
Завораживающие панорамы из окон в разные стороны (в том числе на реку и озеро с высоты 70 м) и слаломная гора рядом с участком вдохновили архитекторов из компании «Норвекс» на создание необычного жилого здания, единственный подход к которому осуществляется через мост. Умная организация пространства позволила создать виллу в 500 м2 на достаточно компактном участке — дом полностью занял его площадь в 2,75 сотки. Крутой уклон в 40 градусов сделал невозможным устройство не только проезда к дому, но и нормального пешеходного доступа. В то же время два этих обстоятельства во многом определили внешний облик сооружения и его планировочную структуру. Так, со стороны плоского фасада оборудована лестница, а противоположный имеет выразительные подрезы, обусловленные необходимостью разбивки террасы, чтобы все-таки была возможность пребывания рядом с домом на свежем воздухе. Здание имеет несколько вариантов обхода за счет оборудования сквозного пассажа в среднем уровне, внешних лестниц, примыкающих к стенам, большой террасы у основания постройки и деревянного моста шириной 4 м, обеспечивающего доступ к участку и верхнему уровню дома. Особенную прелесть постройке придает отделка фасадов сосновыми досками разной ширины и маскировка свайного фундамента тонкими рейками. авторы проекта: Норвекс Денис Дементьев (архитектор и дизайнер), Алексей Князев (конструктор), Наталья Верина (дизайнер) фото: Даниил Анненков площадь дома: 354 м2
20 фотографий




















