Z-HOUSE в пригороде Сочи
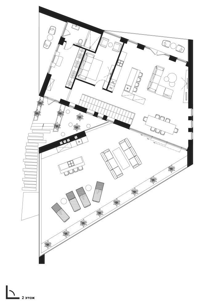
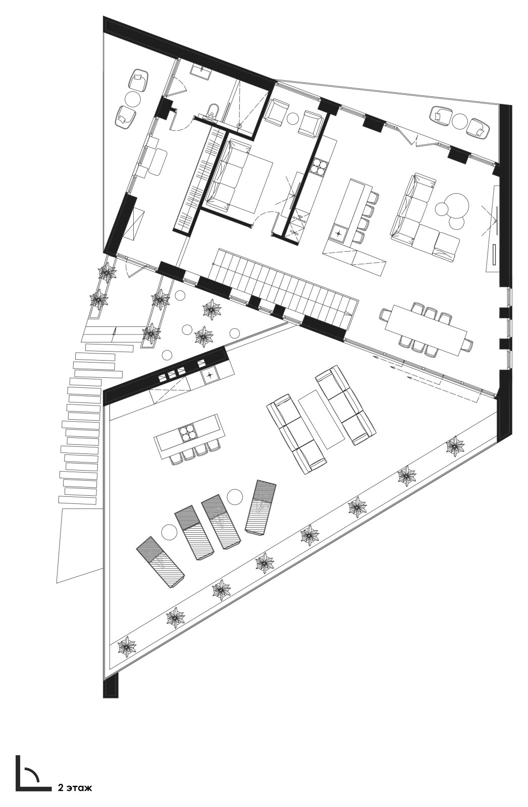
Полностью отражающий наш взгляд на то как архитектура должна работать с окружающей средой, этот особняк огибает естественные изгибы гористой местности в пригороде Сочи, ступенями поднимаясь к вершине холма. Наш Z-House состоит из двух развернутых друг к другу под углом блоков-этажей. Парадный вход, что непривычно, организован во втором уровне, где расположились пространства гостиной и кухни с панорамным остеклением на сторону моря. В первом уровне расположились более прохладные, скрытые от прямых лучей солнца спальни, подсобные помещения. Огромной террасой дом прикрывает парковочное место для двух автомобилей, а по изящному белому абрису балконов струится плющ, придавая сооружению естественную природность и богемный шик.
7 фотографий








