Многоквартирный дом в Берлине
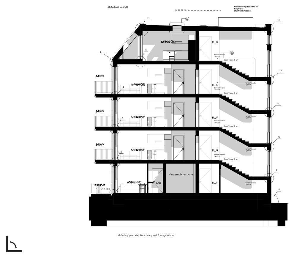
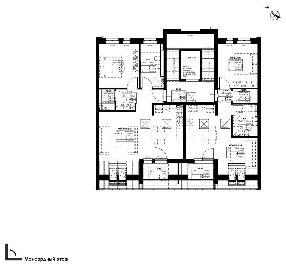
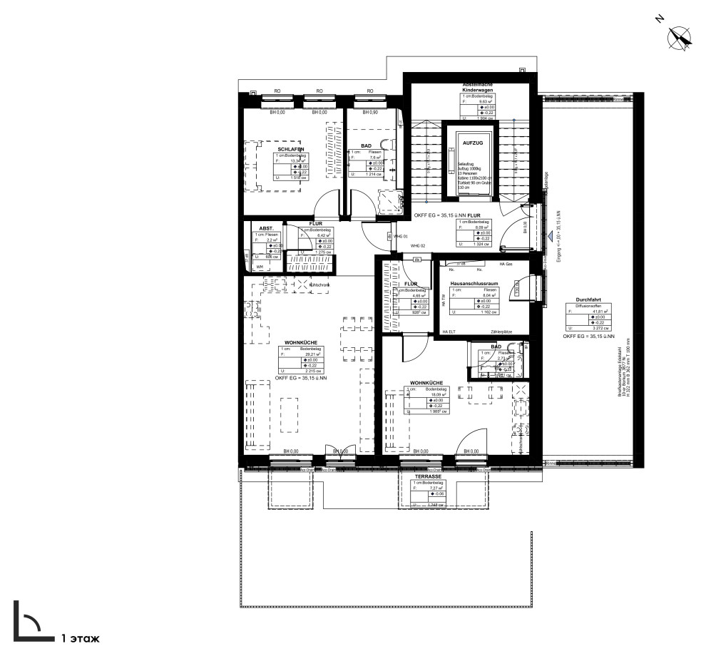
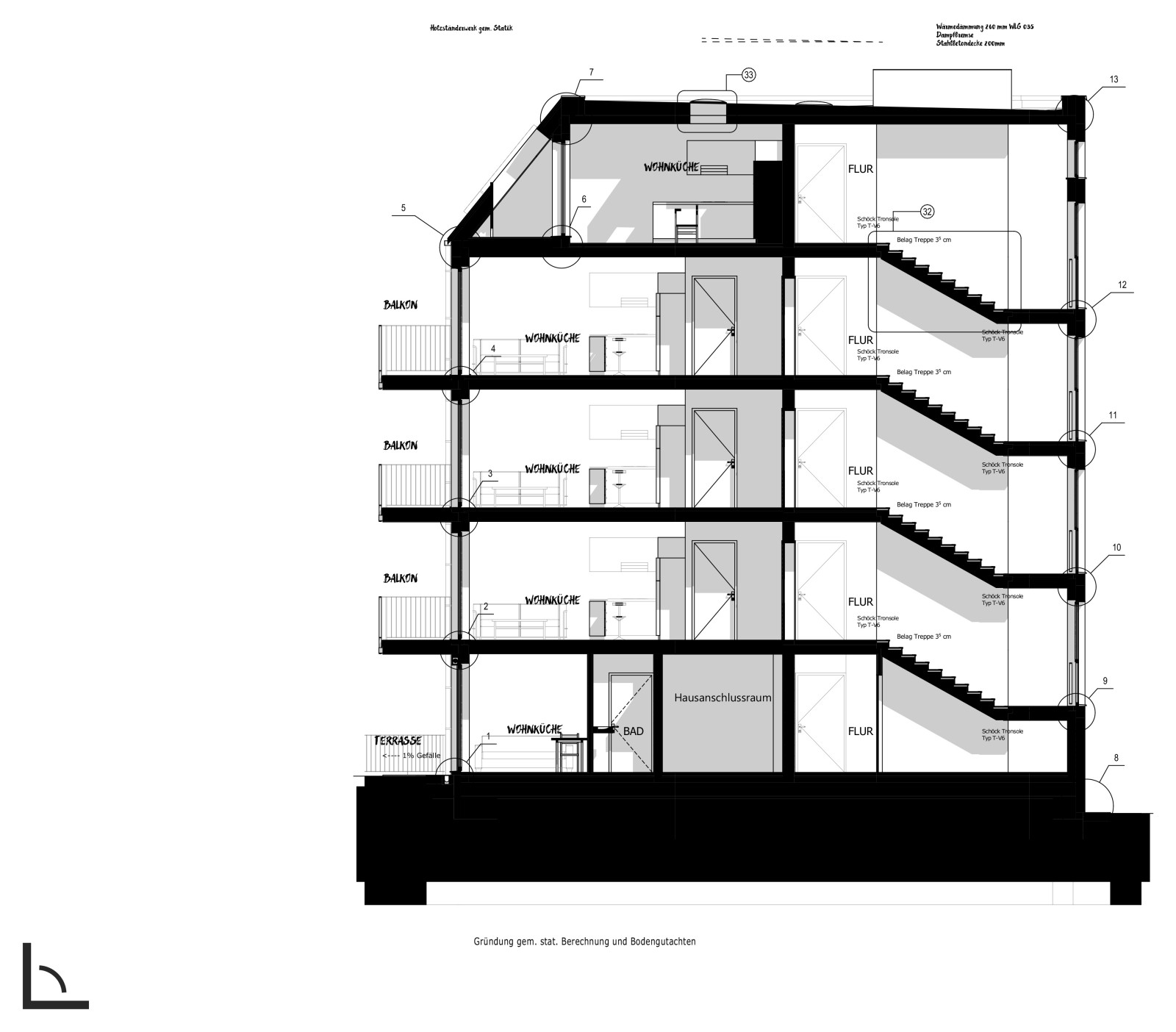
Многоквартирный жилой дом в Берлине, Германия. . Проект выполнен в соответствии с европейскими нормами строительства и архитектуры, оформлен и сдан в реализацию. Строгий и "чистый" фасад из терракотово-красного кирпича PETERSEN KOLUMBA K33 с ритмичным остеклением уравновешивается тонкими выверенными деталями, приятным придомовым пространством с палисадником и легкой, полной света и воздуха мансардой. Вдохновлен главными принципами образа жизни жителей Германии: аккуратность, пунктуальность, свобода, рациональность. . Просторные апартаменты прекрасно инсолированы, удобны и функциональны.
Год реализации: 2020
11 фотографий












