Другие фотографии в проекте Многоквартирный дом в Берлине
Вам ответят эксперты. Пришлем уведомление, когда вам ответят
Архитектура, Блокированный дом, Европейский дом, Контемпорари, Рабочие чертежи, архитектурные решения, дизайн, дом с мансардой, жилое здание, кирпичный дом, мансарда, многоквартирный дом, многоэтажный дом, проектирование, фасад
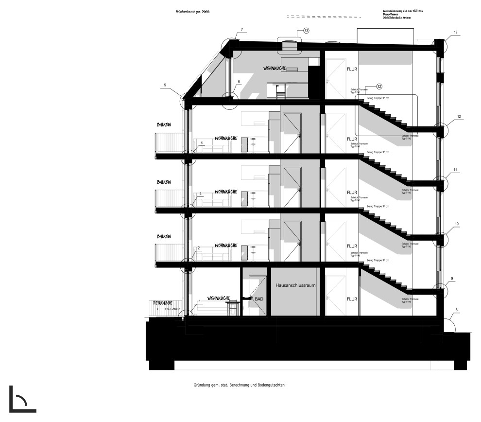
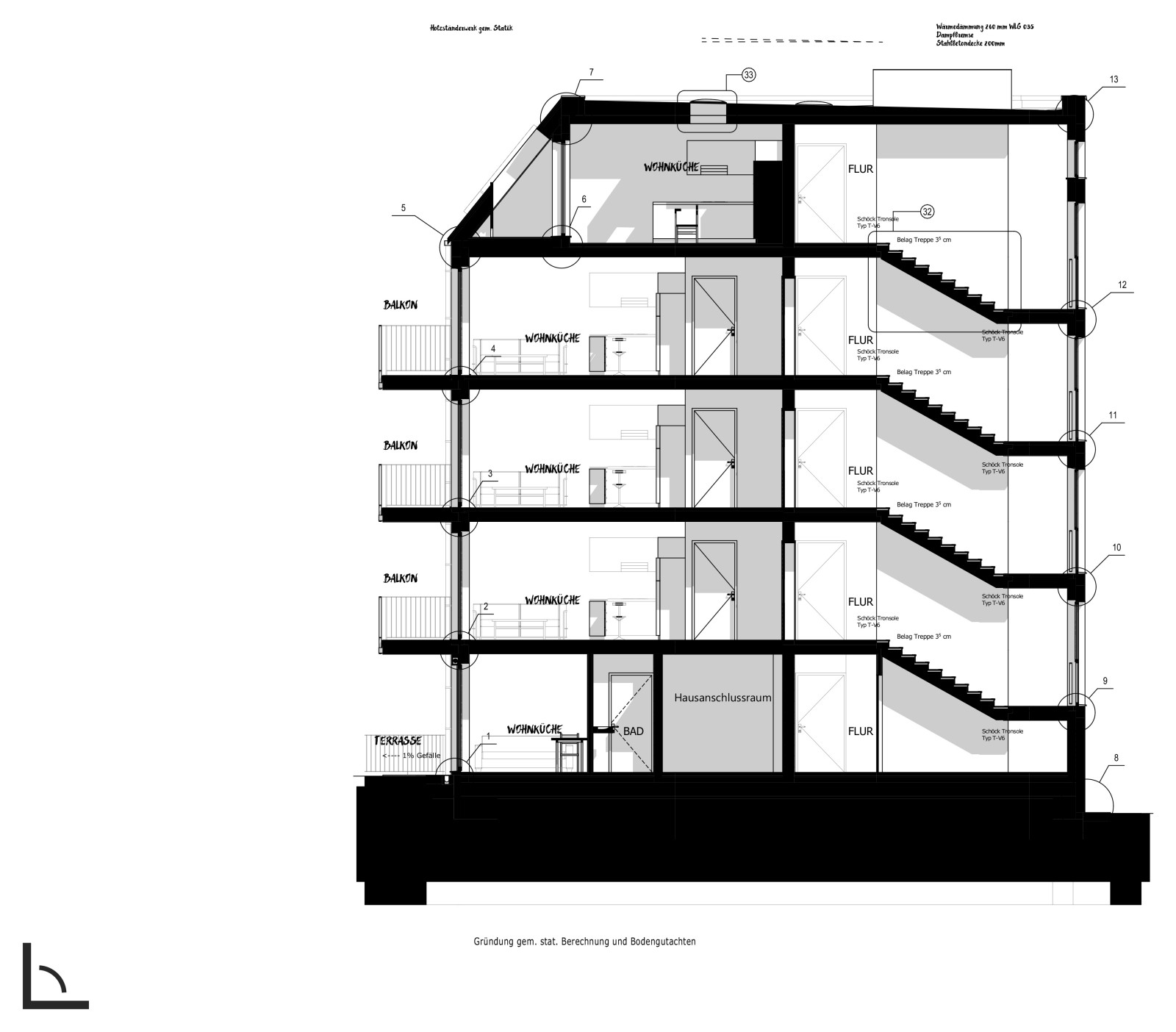
Многоквартирный жилой дом в Берлине, Германия. . Проект выполнен в соответствии с европейскими нормами строительства и архитектуры, оформлен и сдан в реализацию. Строгий и "чистый" фасад из терракотово-красного кирпича PETERSEN KOLUMBA с ритмичным остеклением уравновешивается тонкими выверенными деталями, приятным придомовым пространством с палисадником и легкой, полной света и воздуха мансардой. Вдохновлен главными принципами образа жизни жителей Германии: аккуратность, пунктуальность, свобода, рациональность. . Просторные апартаменты прекрасно инсолированы, удобны и функциональны.