Wood World
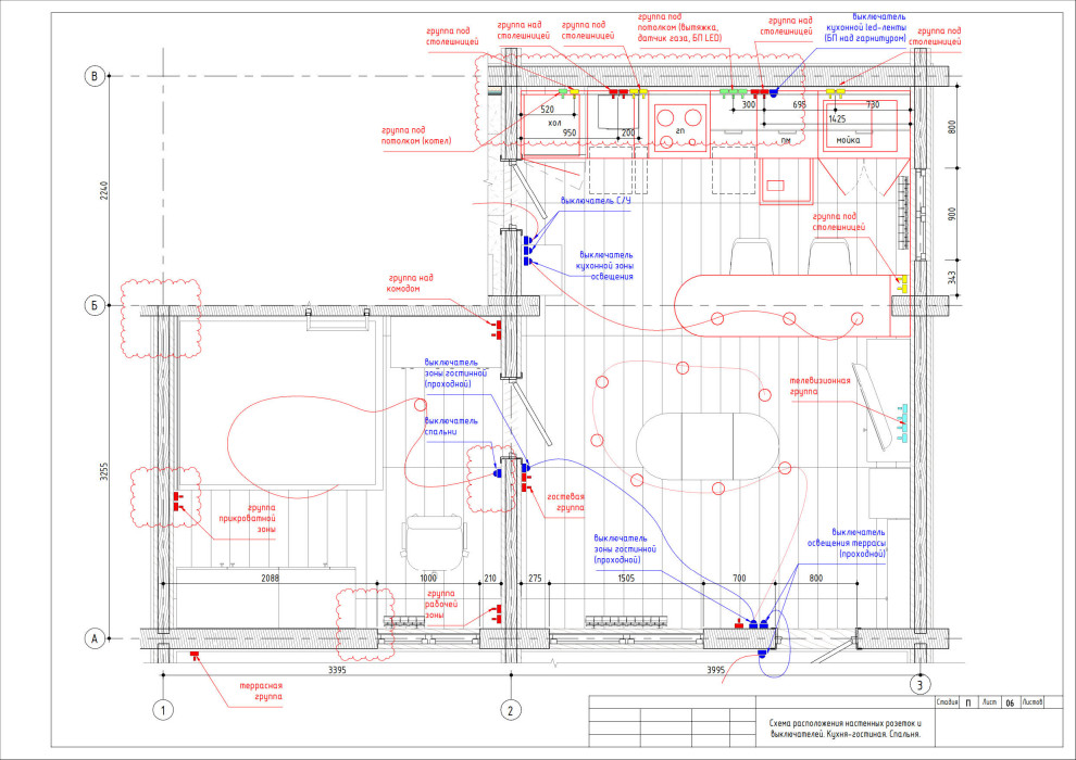
Добрый день, Друзья! Знакомьтесь, один из текущих проектов WoodWorld! Кухня-гостиная в доме из оцилиндрованного сруба, истинный Country-Loft! Основная планировочная задача здесь - разделить пространство на зоны для гостепреимной молодой семьи! Тут у нас и кухонная зона, отделенная хенд-мейд барной стойкой из слэба. И чилаут-группа для томных вечеров. И да, мы выполнили главную просьбу заказчиков, органично вписали часть существующующей мебели с предыдущего ПМЖ
Год реализации: 2020
г. Краснодар
5 фотографий





