
Дизайнеры интерьера
0
Wood World
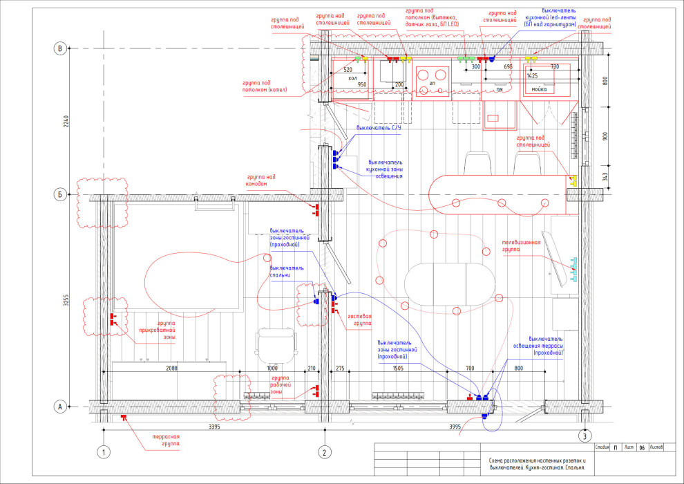
Проект WoodWorld. Каждая розетка и выключатель эргономично размещены согласно требованиям заказчика! Схема проводки в деревянном доме открытая, поэтому точные привязки групп по стенам не требуются.
Другие фотографии в проекте
Вопросы к фото 0
Задайте вопрос
Вам ответят эксперты. Пришлем уведомление, когда вам ответят



