Времена года 350 кв.м. (фотографии)
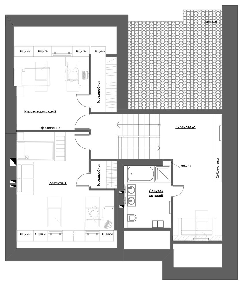
Таунхаус общей площадью 350 кв.м. в Московской области - просторный и светлый дом для комфортной жизни семьи с двумя детьми, в котором есть место семейным традициям. И в котором, в то же время, для каждого члена семьи и гостя этого дома найдется свой уединенный уголок. . . Планировка дома представляет собой многоуровневое пространство с межэтажными комнатами, объединенное лестничным холлом. Основных этажей в таунхаусе два: первый, на котором расположены кухня и столовая-гостиная; второй, на котором размещены две спальни и кабинет; и мансарда с игровым холлом-библиотекой и двумя спальнями для девочек. На каждом этаже - по санузлу, итого в таунхаусе четыре санузла, включая гостевой. Отдельно в подвальном помещении располагается прачечная. . . Интерьер довольно эклектичный и при этом современный. И получил между нами с заказчиками кодовое название «Времена года»: ведь каждая его комната, каждый этаж решен в особом настроении и цветовой гамме. Холодные краски зимы и поздней осени в гостиной-столовой и прихожей сменяются свежими оттенками весны в кухне. А затем приходит время лета: это сочный ковер цвета луговой травы в детских комнатах и оттенки лаванды на стенах всего детского «девчачьего царства» - мансарды. Эклектика нашла свое отражение и в отделке, и в декоре: здесь гармонично сосуществуют роскошные заказные кухонные фасады из массива дуба, итальянская плитка и… простые столовые стулья из Икеи. Дубовая лестница соседствует с испанским керамогранитом на полу, а итальянский диван - с изящными гипсовыми 3д панелями. Дом получился нескучный, веселый и главное - с душой и любовью к деталям . . Фотографы: Мария Усенко, Роман Мокров .
39 фотографий







































