Водный
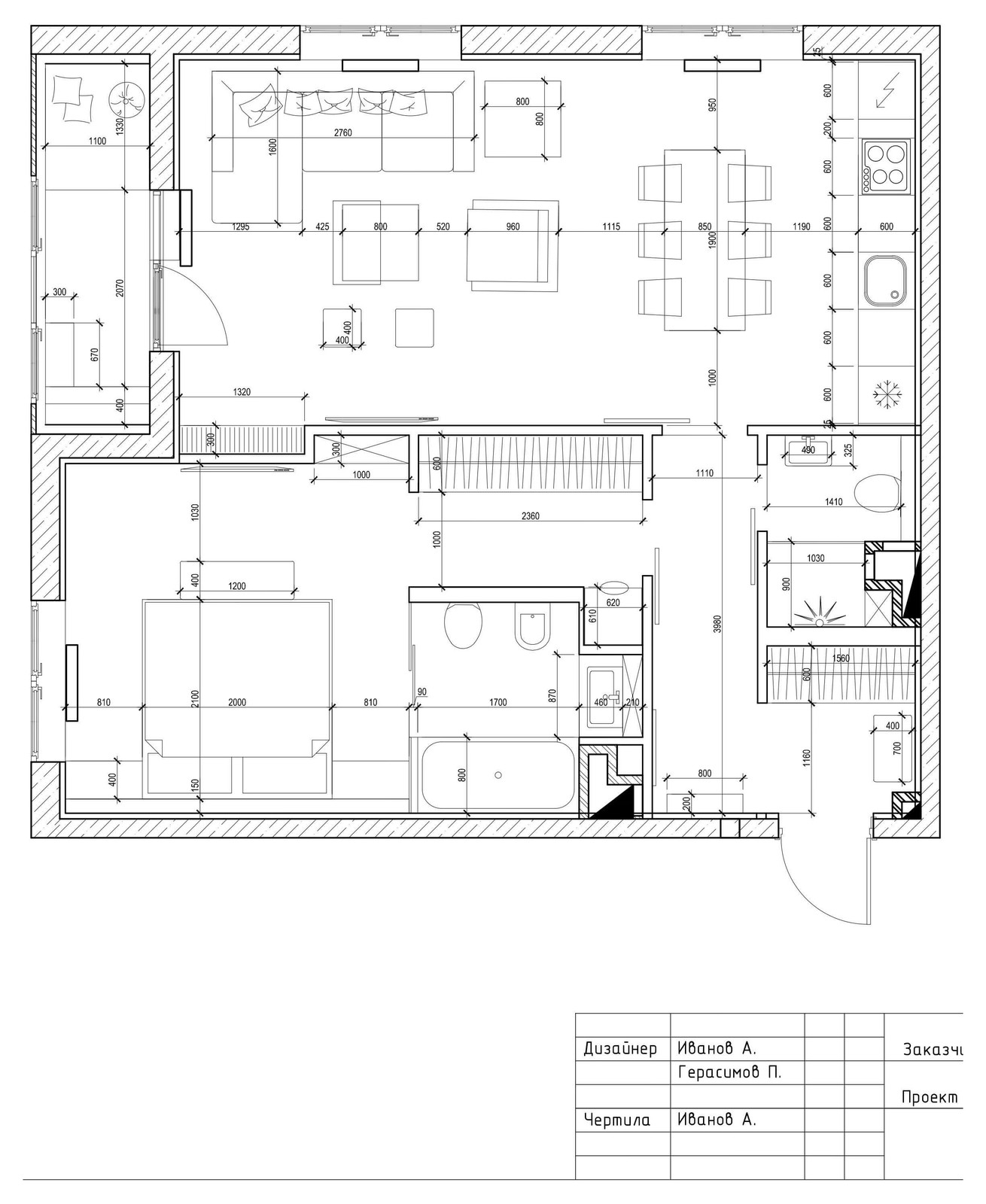
Заказчик предполагал жить в квартире один, иногда приглашая к себе в гости взрослую дочь. Требования к будущему интерьеру были сформулированы максимально четко: светлая, уютная квартира в скандинавском стиле, закрытые системы хранения, деревянные подоконники и столешница на кухне, пол из керамогранита или камня. . . Кроме того, заказчик был намерен установить в квартире климат-контроль и систему «умный дом», с помощью которой можно регулировать сценарии освещения, отключать свет во всей квартире (кроме холодильника), не вставая с кровати. При спальне предполагалась ванная комната плюс еще один санузел, гостевой, при входе. . . Выполняя пожелание заказчика, кухню, гостиную и столовую дизайнеры объединили в одно общее пространство. Второе пожелание – сделать гардеробную проходной, чтобы сквозь нее можно было из коридора пройти в спальню, тоже было выполнено. Дверь, расположенная слева от входа в квартиру, ведет в гардеробную, которая одновременно выполняет роль постирочной и гладильной. . . Ванную комнату отделили от спальни прозрачной стеклянной перегородкой – благодаря этому приему спальня визуально кажется больше. При входе предусмотрен гостевой санузел с душевой кабиной. Застекленный балкон в квартире выполняет роль лаундж-зоны. Заказчик любит покурить на нем кальян, поэтому балкон снабдили усиленной вытяжкой. . . Чтобы квартира казалась более просторной, во всех помещениях повторяются одни и те же отделочные материалы – покраска, дерево, керамогранит. В качестве напольного покрытия используется паркетная доска, этот же цвет дерева повторяется во всех деревянных элементах. Единственное исключение – стол в гостиной зоне, он немного темнее. . . Цвет стен в квартире – светло-серый и белый. Кирпичные акцентные стены в прихожей, по замыслу дизайнеров, должны выглядеть как часть здания, а не декоративный элемент. На кухне, в прихожей, на балконе и в обоих санузлах использована плитка из керамогранита в виде сот. Ванной комнате придает солидности керамогранитная плитка под мрамор. . . Общее освещение в гостиной представлено встроенными светильниками. Функциональное – торшером и подвесными лампами над столом. В спальне для создания уютной атмосферы предусмотрена подсветка по периметру, а также сверху и снизу деревянных реек. Декоративная подсветка есть и в прихожей – она придает выразительность кирпичу. . . Цветовая гамма квартиры – светлая с деревом. Белые и светло-серые стены, светлая плитка, белый с прожилками мрамор, в качестве акцентов –кирпич и черный цвет, а также латунь и хром. Поскольку заказчик любит живые растения, в интерьере много зелени. . . Встроенные шкафы для гардеробной и прихожей дизайнеры специально разрабатывали и заказывали на производстве в России. Системы хранения есть и в спальне (встроенная в стену) и гостиной (наполовину открытые и закрытые). . . Угловой диван в гостиной также выполнен на заказ. Пуфики Fivetimesone из шерсти мериноса похожи на два булыжника и органично вписываются в интерьер, как элементы экостиля. Обеденный стол из экзотического дерева суара поддерживает тему.
32 фотографии

































