"Вкус мёда"
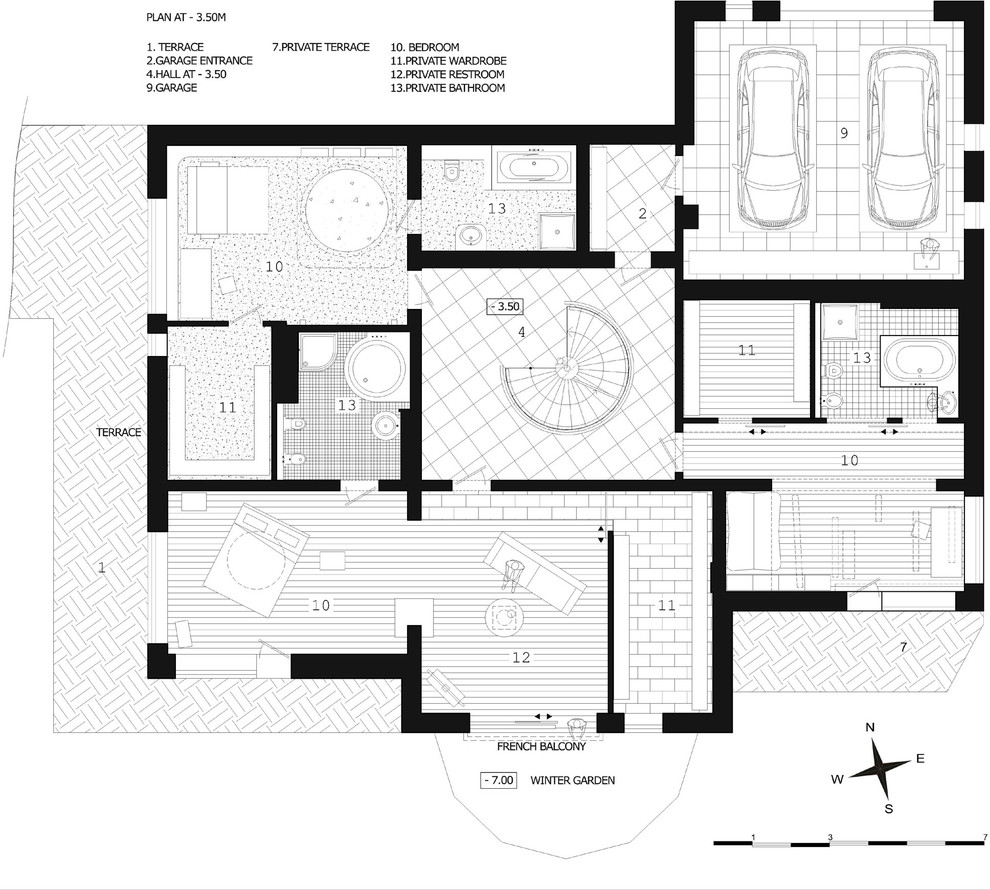
Главной особенностью дома является то, что он расположен на крутом склоне. На каждом этаже мы можем выйти на прилегающие террасы, соединенные лестницами. Главный вход расположен на верхнем третьем этаже, поэтому развитие интерьера происходит не как обычно снизу-вверх, а сверху-вниз.Функционально помещения зонированы поэтажно. Третий двусветный этаж –этаж дневных помещений: гостиная, кухня-столовая, кабинет, библиотека в мезонине. Второй этаж – вечерняя зона спален. Первый этаж – спа зона с бассейном и гостевой, здесь также есть выход к прилегающему ландшафту. Такая вертикальная структура требует особенного отношения к лестнице. В данном случае это основной пространство образующий элемент, на который нанизаны все этажи. Здесь ясно прослеживается аналогия винтовой лестницы с живым деревом. Ее широкие ступени -120см – чтобы могли разойтись два человека, идущих навстречу друг другу, отделаны выбеленным дубом, а несущий ствол, со встроенными светильниками от Supermodular, – тонкими ратифицированными листами пробкового дерева. Отсутствие подступенков в ее оригинальной больцевой конструкции придает ей легкость, несмотря на внушительные габариты. Вертикальное внутренняя структура дома подчеркнута и цветовым решением. Мы поднимаемся от холодных оттенков первого этажа к охристым и бежеватым оттенкам верхних этажей. Как-будто от озера проходим греться к костру. От бассейна спа – к открытому островному камину гостиной. Расположение гостиной удачно и с точки зрения освещения лучами солнца – она расположена с юга; прилегающая к ней терраса – отличная видовая точка: с нее открывается шикарный панорамный вид вниз на ландшафт с искусственным водоемом (небольшим озером). Вообще хочется отметить применение здесь интеграционного подхода к проектированию интерьера загородного дома и подчеркнуть, что здесь его отчасти формирует ландшафт. . Фото П.Лебедев, Д.Мудрогеленко
17 фотографий

















