Вилла в Липецке 348 кв. метров
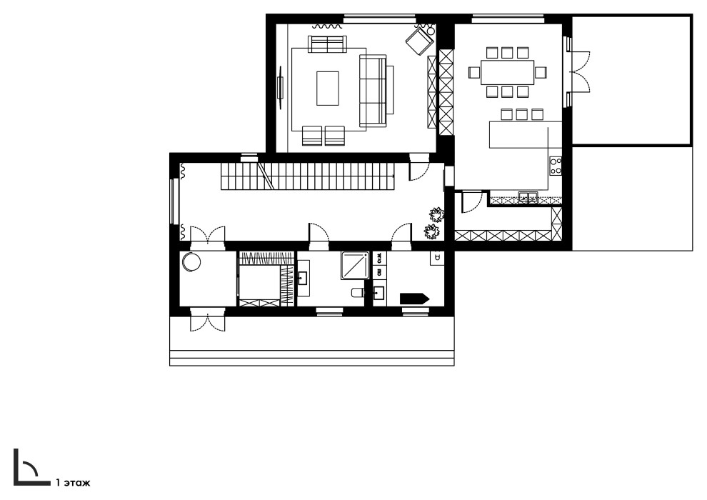
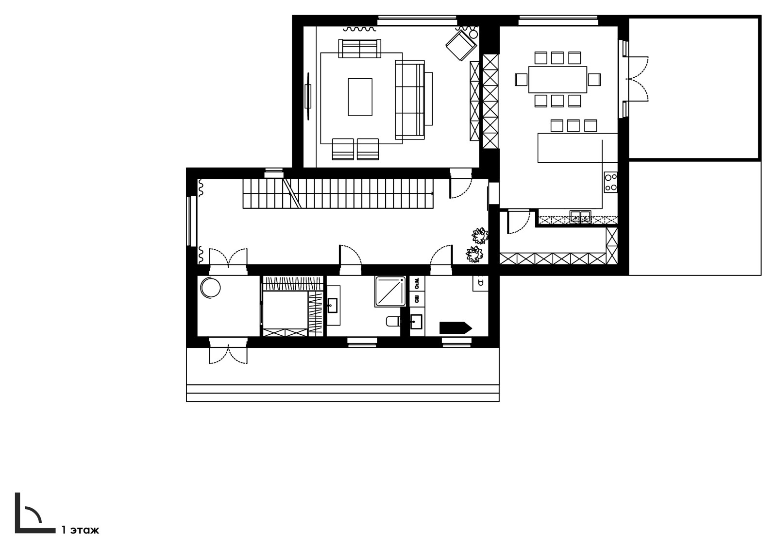
Загородный дом в городе Липецк. Вилла общей площадью 348 м2 состоит из 2-х объёмов и прилегающей террасы. . Здание полностью построено из бетона и облицовано клинкерным кирпичом Petersen Kolumba, K54. Это вилла с минималистскими интерьерными пространствами и скромными требованиями к техническому обслуживанию. . Строение состоит из двух объёмов, объединённых односкатной крышей и свободным пространством, оживлённым сосновыми деревьями. Над главным входом нависает консоль, которая придёт дому динамичности. . Остеклённые мосты, соединяющие обе платформы, пересекают пустое пространство через окружённую соснами галерею, на которую свет попадает с крыши и сквозит из-за ветвей деревьев. Так в дом входит жизненная энергия леса. . Сплошная бетонная полоса огибает всю постройку, тем самым формируя единый образ, придавая строению брутальности и подчёркивает современную направленность. . На первом этаже общей площадью 140 м 2 располагаются: тамбур с гардеробной, большой холл, прачечная, котельная, кухня-столовая с комнатой хранения и большая гостиная с камином. Второй этаж площадью 160 м2 включает в себя: 2 большие спальни с ванными комнатами и гардеробами, детскую комнату, кабинет и 2 кладовые. На террасе площадью 48 м2 находится chill зона c BBQ на которой хозяева дома будут проводить время после трудного рабочего дня в кругу семьи и друзей. .
14 фотографий















