«В поисках тайной комнаты»
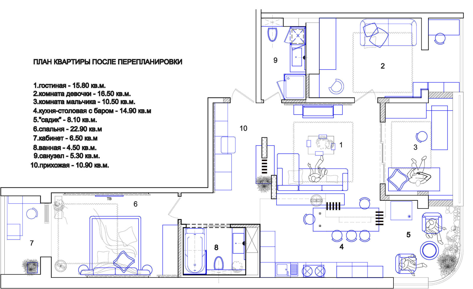
Квартира 110 кв.м. в Москве. Стиль современный. Тип дома: монолитно-кирпичный, свободная планировка. Исходная планировка – три комнаты, кухня, 2 санузла, большой не функциональный холл, 3 лоджии. Финальная планировка: 4 комнаты (спальня рабочей зоной), кухня-столовая с зоной бара и зимнего сада, 2 санузла. Состав семьи: родители, сын 15 лет, дочь 11 лет. Все декоративные элементы интерьера, барно-обеденная зона, мебель: шкафы, полки, столы, кухня (кроме стульев, кресел, кроватей) ЭКСКЛЮЗИВНО выполнены на заказ по чертежам автора проекта и произведены из выбранных автором материалов.
Год реализации: 2015
Стоимость проектирования: 275 000 ₽
13 фотографий












