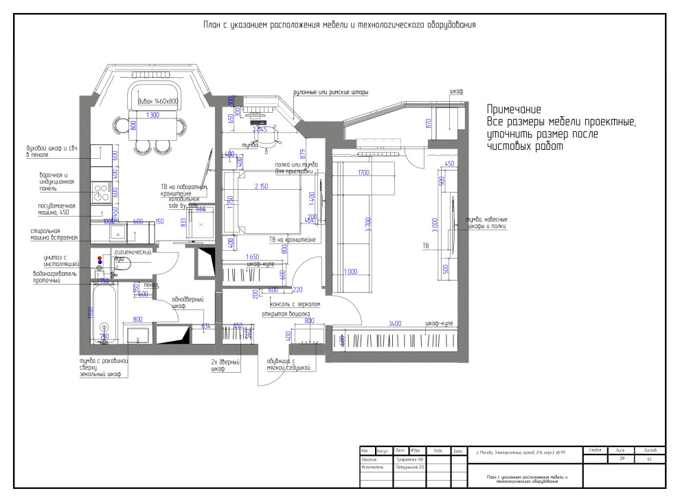
Ультрамариновые акценты
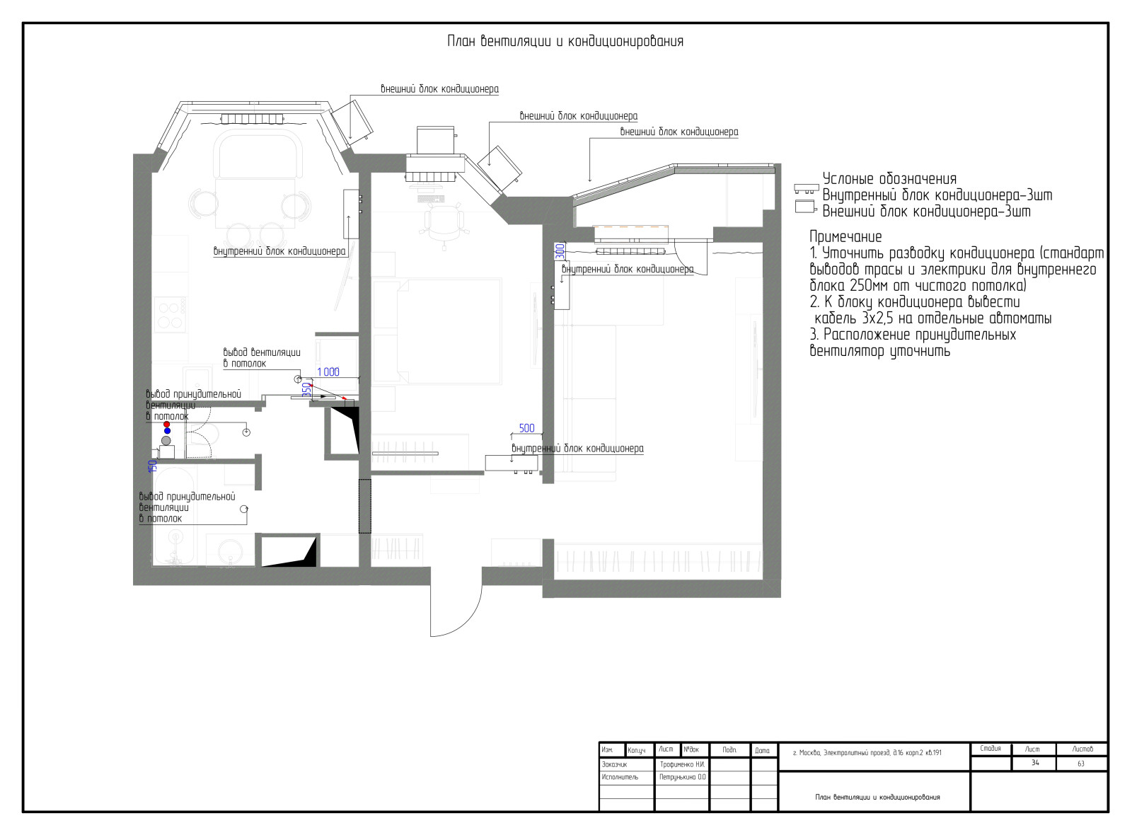
Проект был создан для молодого человека
Год реализации: 2023
Стоимость проектирования: 135 000 ₽
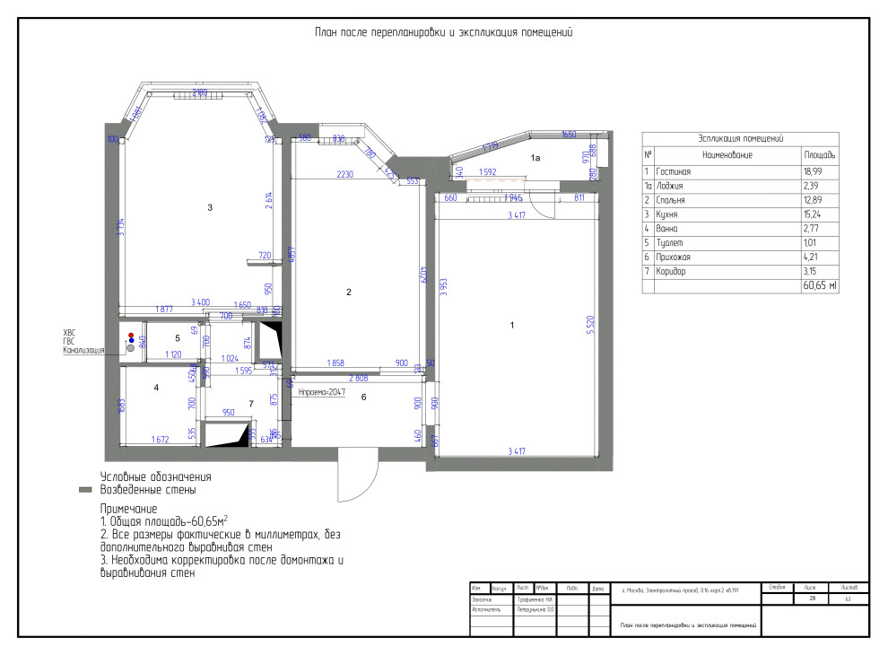
г. Москва, 16 Электролитный проезд, Южный административный округ
46 фотографий
Проект был создан для молодого человека
46 фотографий
