Уютный винтаж в семейной квартире
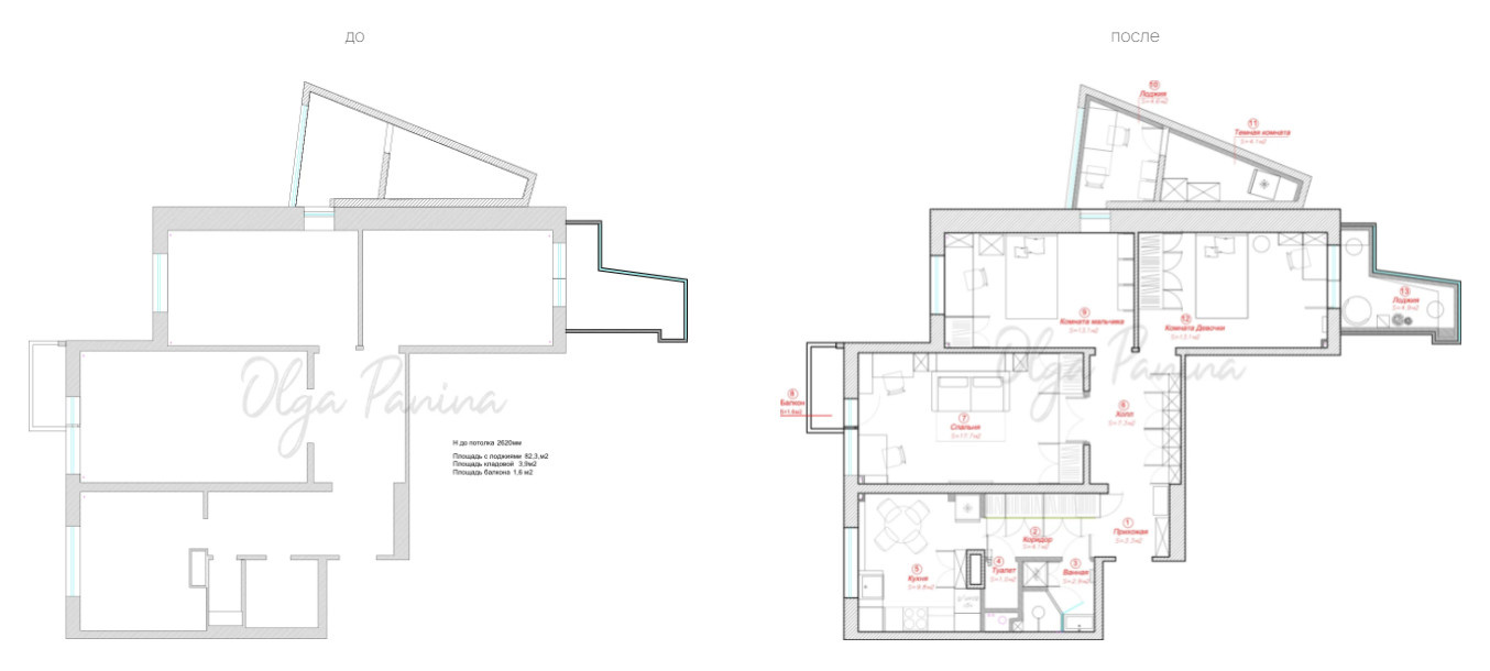
Трехкомнатная квартира 88 м2 на ул. Шолохова, г. Москва . Проект находится на стадии реализации . . Квартира проектировалась для семьи из четырёх человек, из них двое разнополых детей подросткового возраста. Семья биологов увлекается многими разноплановыми занятиями. Так появилась мастерская для поделок на лоджии. . Необходимо было предусмотреть много места под хранение книг и размещение картин, офортов и графики. Продумать для каждого члена семьи рабочее место с личными задачами. По стилистике нужно было сделать интерьер монохромным и в то же время многогранным, добавить интересные фактуры и эффекты освещения, элементы натурального дерева. Интерьер получился винтажным и уютным, с элементами скандинавского стиля. В проекте присутствует намек ампира, благодаря наследственной люстре, которую нужно было вписать в интерьер. Максимально уменьшили видимость санузлов с помощью скрытых дверей. . . Планировка . Особенностью планировочного решения были несущие перегородки почти во всей квартире. Поэтому в проекте мы занимались в большей степени зонированием и продумыванием каждого помещения, чтобы сделать его функциональным и красивым. . Гордостью данной планировки является кухня, в которой нам удалось уместить всё, о чем мечтала хозяйка. Не обошлись и без трансформируемой мебели в основной комнате. Тщательно продумали лоджии и места хранения. Нашли место для каждого, указанного заказчиком предмета. .
22 фотографии






















