"Уют в большом городе"
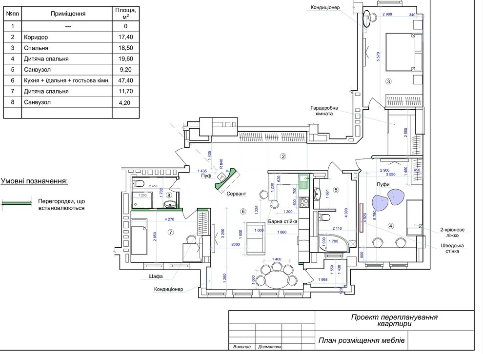
Проект «УЮТ в большом ГОРОДЕ» . . Сведения о квартире: трехкомнатная квартира площадью 120 кв. м. . Владельцы квартиры: супружеская пара с тремя детьми. . Пожелания клиентов: интерьер в современном стиле. . . Проект ориентирован на вкусы молодых современных владельцев. Одно из условий заказчика – перепланировать квартиру, объединив гостиную, кухню и обеденную зоны. . Дизайнеру Юлии Долматовой удалось выгодно организовывать заданное пространство и предлжить свой вариант дизайна 3-х комнатной квартиры. . Панельный дом смотрятся довольно сумрачно и громоздко, поэтому дизайнеру хотелось в противовес внешнему виду дома создать внутри него легкое прозрачное и светлое пространство. . Дизайн 3-х комнатной квартиры выполнен в современном стиле с элементами классики. Глянцевые поверхности фасадов кухонной мебели, стальной холодильник, стекло кухонного фартука удачно гармонируют с декоративной штукатуркой на стенах гостиной и витиеватым рисунком розетки на полах в прихожей. . Чтобы создать по-настоящему уютное и просторное помещение, дизайнер особенно внимательно отнеслась к выбору подходящих оттенков. Легкий, светлый и практически «воздушный» интерьер впечатляет своей приветливой энергетикой. Природные цветовые решения позволяют оторваться от привычной городской суеты и расслабиться после насыщенного дня. Кофейные, молочные, светло-серебристые, бирюзовые тона создают умиротворяющую композицию. . . Концепция дизайна детской комнаты. . Детская комната рассчитана на двух мальчиков разного возраста. Возле каждого спального места расположены светильники, изготовленные из стеклоблоков. В центре комнаты игровая зона с мягкими пуфиками перед ТВ, письменный стол приставлен к внешней стене с окном. В оформлении стен использовались яркие однотонные обои и фотообои, а на потолке в рабочей зоне - натяжное полотно в цвет обоев. В помещении предусмотрено несколько видов потолочной подсветки. Поворотные светильники для местного освещения над рабочим местом, центральная люстра и скрытая потолочная подсветка, играющая декоративную роль с мягкой ночной подсветкой. . . Спальня взрослых стала идеальным образцом классического стиля - очень элегантной, утонченной и уютной. . ЗАДАЧА ДИЗАЙНЕРА: разработать интерьер спальни с элементами классического стиля. Предложить несколько цветовых решений. . Дизайнер осталовилась на сочетании "теплого" и "холодного". В холодном преобладает голубой цвет, а в теплом - молочно-пудровый. Чтобы внести в комнату больше света и добавить ощущение пространства и легкости, на потолке разместилась изящная фигура со светильниками по периметру. Смотрится эффектно и служит настоящим украшением комнаты. С той же целью дизайнер добавила в интерьер комнаты больше зеркал - они зрительно увеличивают пространство комнаты и расширяют ее границы. . . (фотогалерея обновляется) .
26 фотографий


























