Убираем гараж ради...
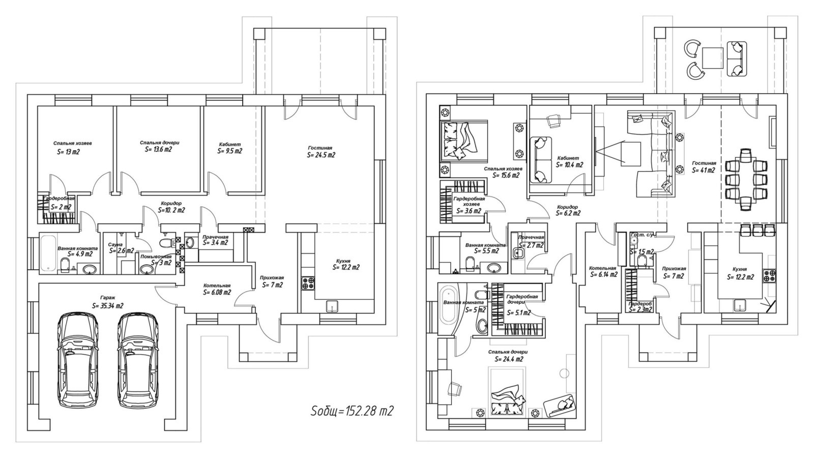
Просторный дом, большой гараж, с которым хозяева без сожаления расстались ради… Но обо всем по порядку. . К нам в студию дизайна “Золотое сечение” обратилась супружеская пара с маленькой дочкой шести лет. В пригороде Казани в коттеджном поселке Гарден они приобрели дом общей площадью 152 кв.м. Нашей задачей стало превратить его в уютное семейное гнездышко. . Каждый наш проект начинается с изучения желаний наших заказчиков, а также с выяснения из вкусов в стиле, цвете, формах. Этот процесс в нашей студии дизайна называется аудитом желаний клиента. Результатом этого исследования стало заключение, что интерьер должен быть в достаточно светлых, сливочных тонах без каких-либо кричащих цветовых акцентов. Допустимы переходы от серого к жемчужно-перламутровым оттенкам. Формы предпочтительны простые и сдержанные. . В своей работе я, как дизайнер, стремлюсь создавать интерьеры “на вырост”. Так он будет оставаться актуальным еще много лет после завершения ремонта. Поэтому мы с командой предлагаем клиентам технологии и материалы, который как раз позволят создать именно такой интерьер с пролонгацией его актуальности. За это по прошествии лет наши клиенты нас часто благодарят. . Кухня-гостиная . . Гостиная этого дома обладала роскошным арочным окном и высоким потолком. Однако архитектура этого потолка была несколько хаотична. Мы привели его к симметрии. Двускатный потолок обрамил восхитительное окно и сделал его поистине центральным достоянием комнаты. Темный оттенок пола с текстурой дуба создает некий контраст с однотонными светлыми стенами серого оттенка. Молдинги по периметру комнаты завершают композицию стильной комнаты наполненной светом. . . В этом проекте по желанию заказчиков мы создавали дизайн только в ручной графике. 3D визуализацию клиенты решили не делать. Эскизы передают общую идею, каким будет будущий интерьер. Но для понимания оттенков, фактуры, сочетания тех или иных элементов, при представлении проекта клиентам мы демонстрируем реальные образцы материалов, которые будут использованы в ремонте. . Наши клиенты увлеченные люди. Хозяин дома имеет обширную коллекцию фарфоровых статуэток и монет. Фарфор мы разместим в подвесных витринах. Их мы разработали специально для этого проекта. Внутренняя подсветка, угловое остекление позволят в полной мере насладиться красотой коллекции. Витрины дополняет ТВ-тумба с рельефными фасадами. И вся эта композиция органично вписывается в элегантный интерьер. . . В гостиной есть нише, где расположилась кухня. Не смотря на то, что это единое пространство, зонирование с помощью острова позволило визуально отделить кухню от общей комнаты. . Для хозяйки дома мы приготовили необычное решение. Кухонная вытяжка встроена в варочную поверхность. Таким образом мы освободили стену от коммуникаций и разместили на ней витрины для посуды. . Для покрытия стен мы использовали крупноформатный керамограни. Получилось практически бесшовное покрытие, износостойкое и легкое в уборке. Раковину мы разместили перед окном. Поэтому откосы также покрыли керамогранитом Laminam. . . Кабинет. . В небольшом кабинет хозяина дома нам пришлось прибегнуть к маленьким дизайнерским хитростям, чтобы визуально увеличить эти 10 квадратных метра. . . Фреска в виде старинной гравюры с пейзажем покрывает весь периметр комнаты. Стены как бы растворяются с помощью этого приема. Мы осознанно выбрали приглушенный оттенок, чтобы изображение не контрастировало с основной светлой гаммой дома. . В кабинете также появятся стеклянные шкафы. Их глубина позволит разместить только 1 ряд книг и коллекцию монет. Но скрытая внутренняя подсветка и тонированное стекло дверей создадут эффект глубины и придадут объема всему помещению в целом. . . Спальня хозяев - это еще одно помещение, где мы использовали дизайнерские приемы увеличивающие пространство. Комната небольшая - 15 кв. м. Отдельную площадь занимает гардеробная, а значит нам не придется занимать место шкафами. . . В изголовье кровати мы установим рельефное панно, которое будет заходить на боковые стены. Этот прием будет работать на создание объема. Эффект поддержат обои с перламутровым тиснением Refined Structures от Джорджио Армани. По периметру комнаты мы установим широкий карниз с молдингами и спрятанной подсветкой. Мягкий свет придаст уюта и воздушности пространству. . Поддержит настроение каплевидные итальянские светильники ручной работы от фабрики Cangini & Tucci. Их цветовая гамма с переливами от жемчужно-серого к янтарному перекликается с общей концепцией дома. . Хозяйская спальня дополнена не только гардеробной, но и своей ванной. Окно в ванной комнате мы решили обыграть очень необычным способом - на подоконнике установили контейнер с вьюнами. Такой живой зеленый занавес будет скрывать помещение от любопытных взглядов с улицы. Но чтобы быть уверенным наверняка, ставим перед окном раздвижную ширму. За ее матовым стеклом растения будут выглядеть еще более интересно. . Непосредственно перед окном мы создаем просторную душевую зону, которая больше походит на спа. Из акрилового камня формируем сиденье в форме волны, которая как бы спускается по стене. Этот материал пропускает свет, поэтому сиденье будет подсвечиваться изнутри. А в потолок монтируем душ впечатлений. В таком месте легко можно отдаться полному релаксу. . Теперь мы подошли к самому интересному. Ради чего же хозяева отказались от шикарного и просторного гаража? . В первоначальной планировке дома никак не получалось выделить место под просторную детскую. А это было самой приоритетной задачей для наших заказчиков. Тратить площадь в 35 кв.м под гараж не было никакой необходимости. Поэтому мы кардинально перепланировали помещение и превратили гараж в комнату для девочки со своей гардеробной и великолепной ванной комнатой. . Два окна появились на месте въезда в гараж. В пространстве между окнами расположилась кровать и задала симметрию комнаты, что так присуще неоклассическому стилю, в котором выполнен весь дом. . Созданная вручную итальянская мебель от фабрики RTL Mobili изысканная и утонченная. Но в комнате не хватало какой-то легкой игривости. Ведь маленькой хозяйке всего 6 лет. Так появилась идея использовать классический элемент - арки, но в несколько необычном формате. . На стенах появились объемные молдинги, имитирующие арочные своды. Объем им придает скрытое освещение. Светильники в форме арок, круглое зеркало у туалетного столика, плавные изгибы мебели и изящные фарфоровые бра в виде стайки птичек - все это создает ощущение воздушного замка. То, что нужно для юной хозяйки комнаты. . А за стеной расположилась уютная детская ванная комната. Здесь присутствует атмосфера водной стихии. Подиум для ванной напоминает форму лодочки. Каплевидная раковина, люстра с подвесами-пузырьками, полотенцесушитель в форме кораблика от Cinier… Кажется, вот-вот и услышишь шум прибоя с шелестои морской гальки. . Мечты сбываются! . Наши клиенты мечтали о просторной детской для своей дочки. Мы сделали это возможным. . И конечно, они хотели, чтобы дом был максимально комфортен и в остальных отношениях. Рационально использовать всё пространство дома - наш главный принцип в работе. Мы исполнили все желания заказчиков, продумали как жилые комнаты, так и рабочие помещения (котельную, прачечную и т.д.) . Проект завершен. . Приступаем к новому. .
16 фотографий
















