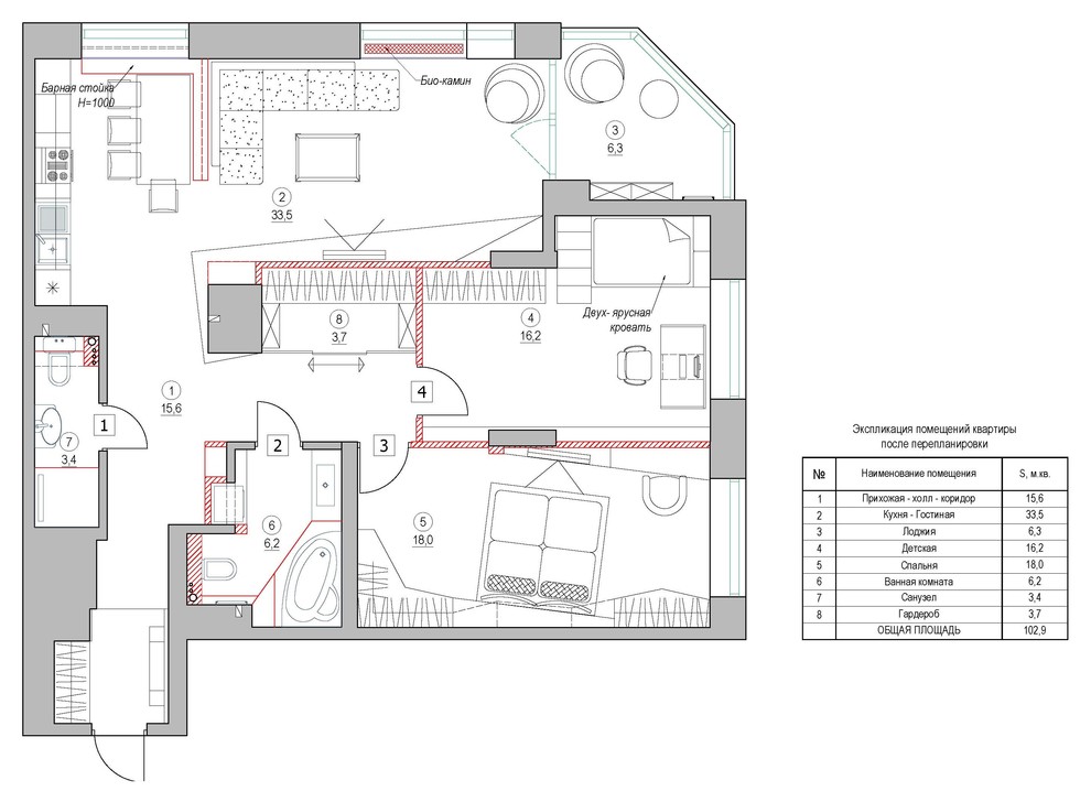
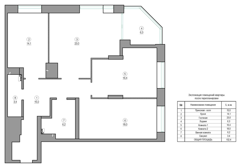
Трехкомнатная квартира в ЖК Космос
Квартира в ЖК "Космос". Площадь - 102 м2. . Трехкомнатная квартира для семьи из 3 человек.
Год реализации: 2015
Стоимость проектирования: 135 000 ₽
г. Санкт-Петербург, 7 проспект Юрия Гагарина
19 фотографий
Квартира в ЖК "Космос". Площадь - 102 м2. . Трехкомнатная квартира для семьи из 3 человек.
19 фотографий
