Квартира студента на Петроградке
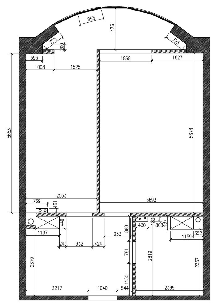
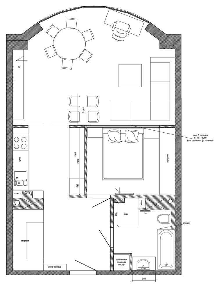
Перепланировка позволила организовать большую гостиную зону, о которой мечтал заказчик. При этом не потеряна функциональность кухни. . Микроклимат в маленькой спальне поддерживается дополнительной вентиляционной системой.
Год реализации: 2019
Стоимость проектирования: 135 000 ₽
г. Санкт-Петербург, 8 Офицерский переулок
28 фотографий




























