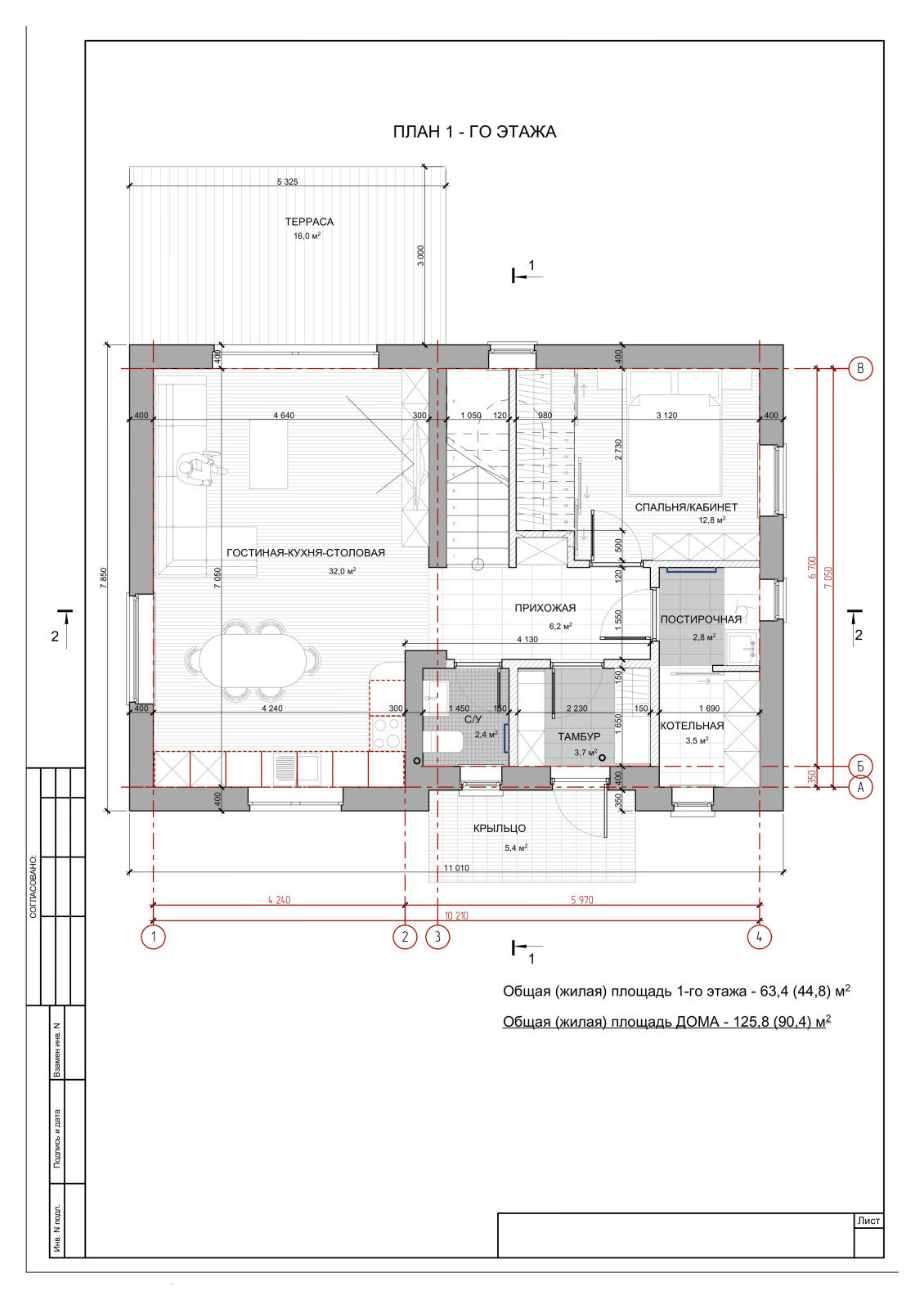
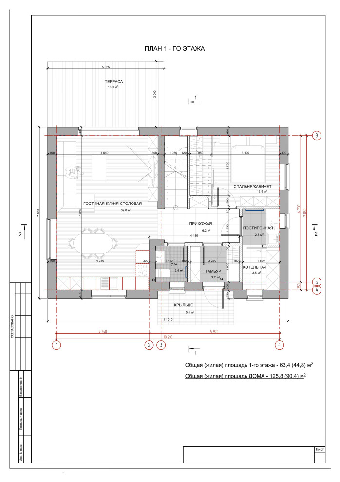
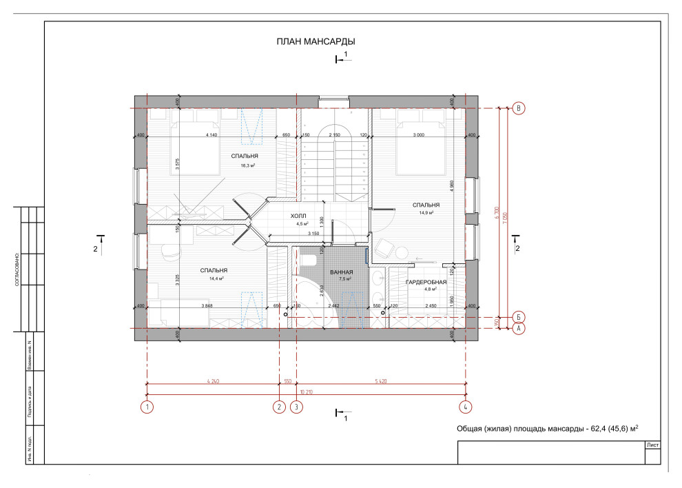
Типовой уютный дом на 125 м2
Типовой проект для обычной ситуации - когда не так много денег, но хочется свой красивый и удобный дом. Где можно комфортно жить семье из 3-4 человек и где всем хватит места. На 1-м этаже для этого есть гостиная совмещенная с кухней-столовой и собственным выходом на террасу, санузел, кабинет, которую можно использовать как гостевую спальню или комнату для родителей, котельная и отдельная постирочная. На 2-м этаже расположились 3 просторные спальни и ванная.
Год реализации: 2019
Стоимость проектирования: 135 000 ₽
г. Тверь
15 фотографий















