logo
Типовой уютный дом на 125 м2
МАСТЕРСКАЯ Кирилла Третьякова

4.75

·

16 отзывов

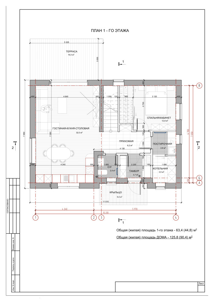
Типовой уютный дом на 125 м2

Типовой проект для обычной ситуации - когда не так много денег, но хочется свой красивый и удобный дом. Где можно комфортно жить семье из 3-4 человек и где всем хватит места. На 1-м этаже для этого есть гостиная совмещенная с кухней-столовой и собственным выходом на террасу, санузел, кабинет, которую можно использовать как гостевую спальню или комнату для родителей, котельная и отдельная постирочная. На 2-м этаже расположились 3 просторные спальни и ванная.

Другие фотографии в проекте

Вопросы к фото 0

Задайте вопрос

Вам ответят эксперты. Пришлем уведомление, когда вам ответят