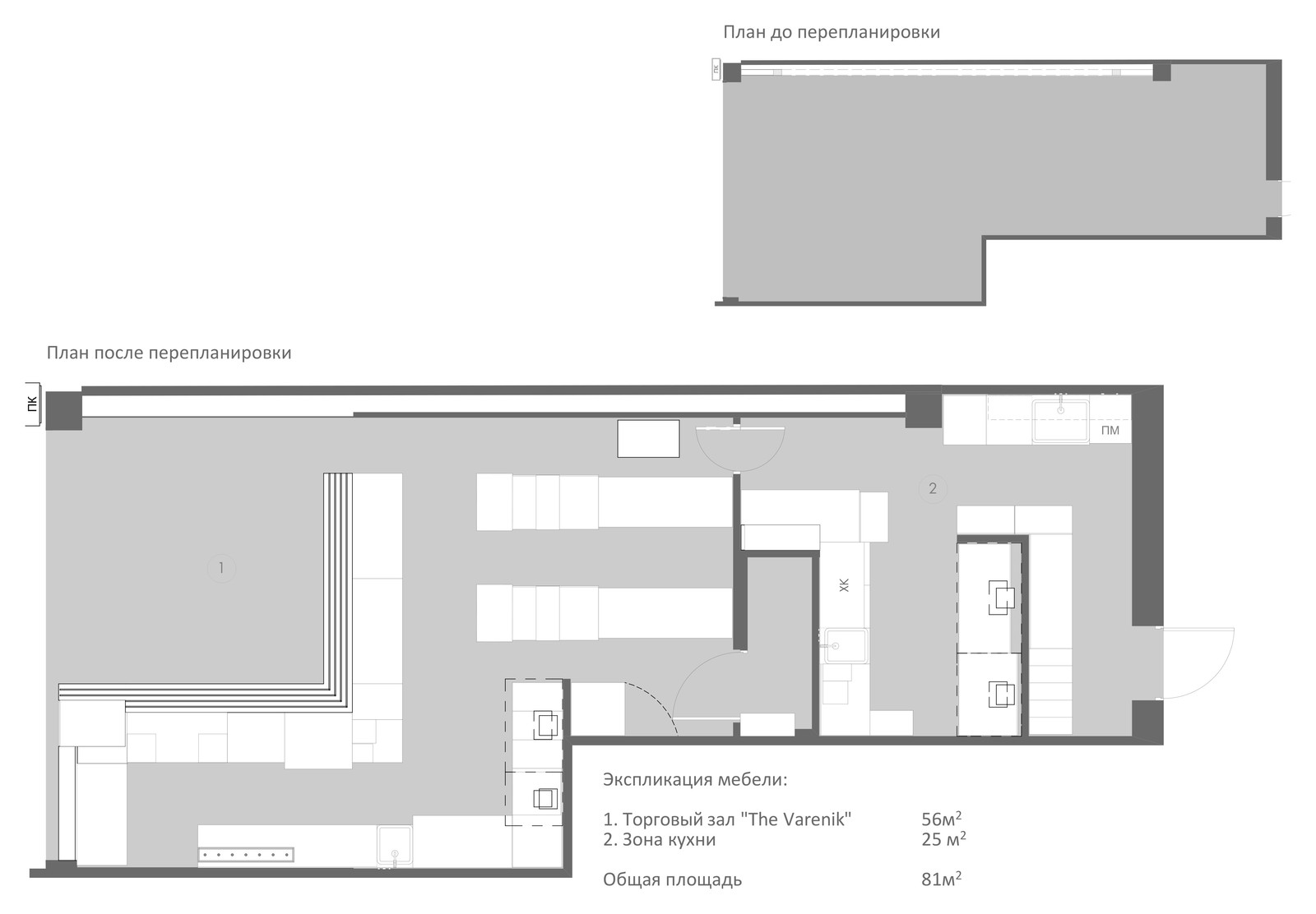
The Varenik
Ресторан быстрого питания «The Varenik» нарушает все законы своего жанра, начиная от способа приготовления блюд, заканчивая дизайном и атмосферой. Всем нам знакомые вредоносные рестораны быстрого питания активно закрываются, на замену им приходят заведения нового поколения – fast casual, в которых внимание уделяют даже самым, казалось бы, незначительным мелочам. Живые продукты, блюда, приготовленные из всего натурального, полезные десерты и только еко-френдли технологии – все это не будущее, а наше с вами настоящее. Cтильный и модный вид, современный и уникальный дизайн повлекли за собой значимые изменения в гастрономической культуре потребления. И мы сегодня успеваем насладиться качеством этого дизайна даже в повседневной спешке.
24 фотографии
























