Теплый минимализм: этаж дома 67 м² в стиле джапанди
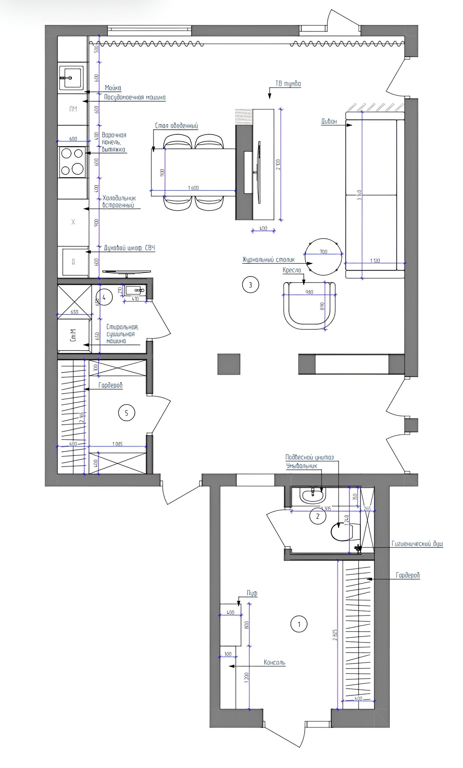
Проект: Эстетика джапанди - гармония и функциональность на 67 квадратах. Локация: Сочи. Объект: Второй этаж частного дома, 67 м². Для кого: Большая семья с детьми. Проблема клиента: Заказчики пришли со сложной планировочной задачей. Второй этаж дома представлял собой огромный нефункциональный коридор, в центре которого находился проем (атриум) на первый этаж. Бесполезная площадь: Большое пространство простаивало, так как семья просто не понимала, как его использовать. Сложная геометрия: Из-за «дыры» по центру пола было непонятно, как логично выстроить маршруты и где разместить кухню, столовую и зону отдыха. Запрос: Семье было необходимо общее, теплое и уютное пространство в стилистике джапанди, где все поколения могли бы собираться вместе, не мешая друг другу. Наше решение: Мы полностью переосмыслили геометрию этажа и продумали, как надежно закрыть атриум по центру, грамотно рассчитав точки опоры и перегородки на 1 этаже. Это позволило получить драгоценную полезную площадь для реализации всех задач: Архитектурный акцент: Чтобы визуально отделить гостиную, но не лишать пространство воздуха, мы возвели перегородку с эффектным круглым сквозным проемом. Эта плавная форма идеально поддерживает философию джапанди и буквально растворяет массивную стену в интерьере. Многофункциональное зонирование: Посередине помещения мы сделали дополнительную перегородку. С одной стороны она эстетично задекорирована рельефными 3D-панелями, а с другой — стала центром притяжения гостиной. Здесь мы разместили биокамин, ТВ и организовали просторную зону отдыха с большим диваном. Кухня и столовая: На добавленных квадратных метрах мы логично расположили кухонную и обеденную зоны, создав комфортное перетекающее пространство для семейных встреч.
12 фотографий












