Студия 28 м² под сдачу: эргономика и эстетика джапанди
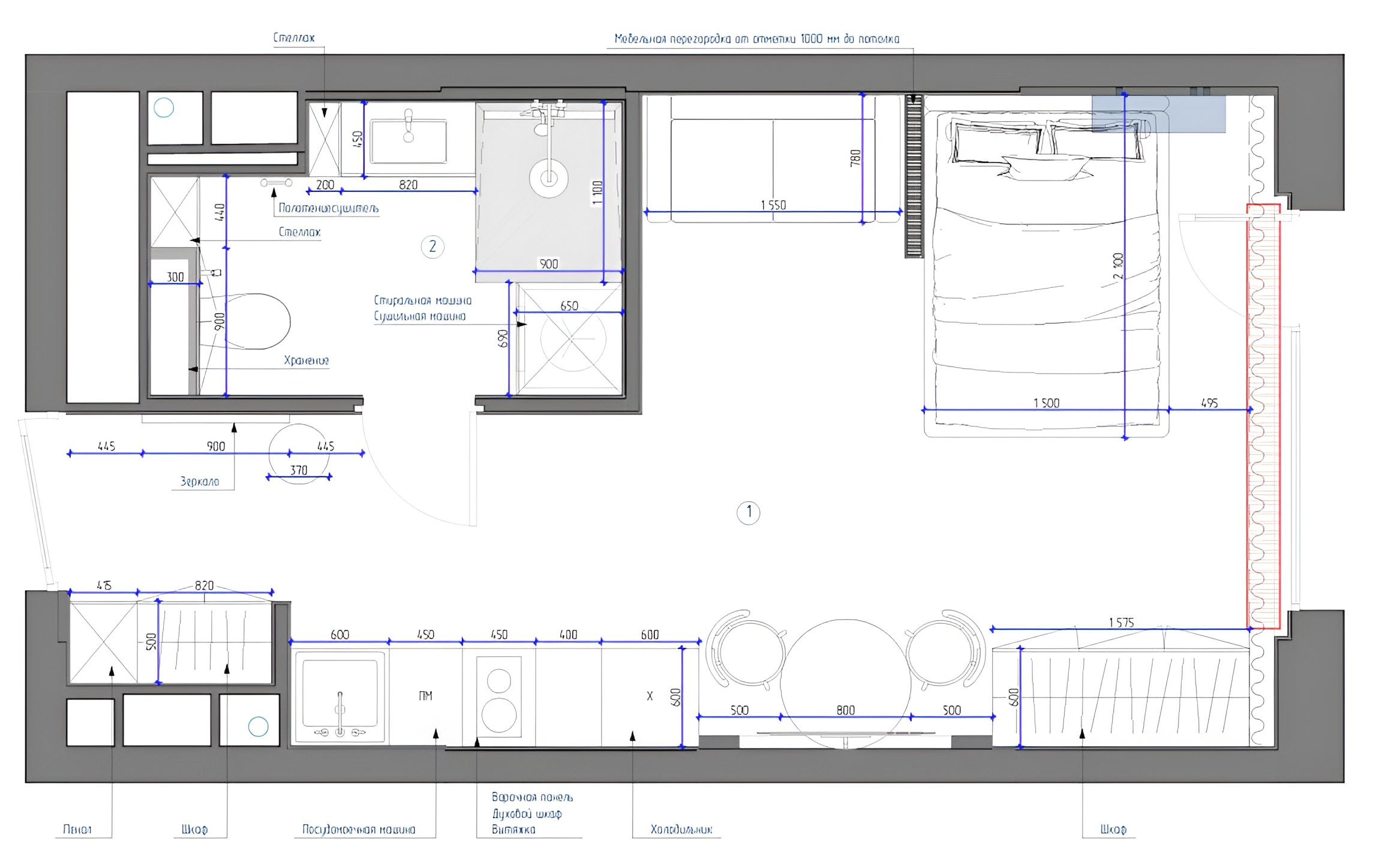
Студия 28 м² под сдачу: эргономика и эстетика джапанди Где находится: Москва. Тип жилья: Студия, 28 м² (инвестиционный проект). Для кого: Под сдачу в аренду (целевая аудитория - один человек или молодая пара). Проблема клиента: Заказчик приобрел совсем небольшую студию для сдачи в аренду и хотел сделать из нее привлекательный, высоколиквидный продукт. Главный страх: Клиент очень переживал, что на 28 квадратах будет невероятно тесно. Был сильный страх, что ничего не поместится и придется жестко выбирать между полноценным спальным местом и диваном для отдыха. Запрос: Создать максимально функциональную планировку. Нужно было вместить все жизненно важные зоны так, чтобы студия не ощущалась как захламленный номер, а выглядела стильно, просторно и дорого. Решение, которое мы предложили: Мы выбрали эстетику джапанди: светлые природные оттенки и визуальная чистота этого стиля идеально работают на расширение пространства. Нам удалось развеять страхи заказчика и разместить всё необходимое: Функциональная прихожая: Спроектировалиосновной шкаф и дополнили его красивым, изящным шкафом-пеналом. Обязательный элемент -большое зеркало, которое добавило света и визуально раздвинуло границы узкого коридора. Кухня и акцентная столовая: Мы вписали компактную, но очень удобную кухню со всей нужной техникой. Главной изюминкой и фотогеничной деталью студии стала декоративная арка за обеденным столом - этот прием делает интерьер запоминающимся и выделит квартиру среди сотен других объявлений. Умное зонирование жилой комнаты: Мы совершили то, во что клиент не верил изначально -уместили и спальню, и зону гостиной. Грамотная расстановка позволила частично и очень деликатно зонировать диван от кровати. Продуманное хранение: В жилой зоне разместили дополнительный полноценный шкаф для повседневной одежды, закрыв все вопросы с хранением вещей будущих арендаторов. Итог: На 28 м² мы создали полностью укомплектованное, эргономичное и стильное пространство, в котором есть воздух и нет ощущения тесноты.
12 фотографий












