Строительство загородного дома в Калининграде, пос. Заостровье
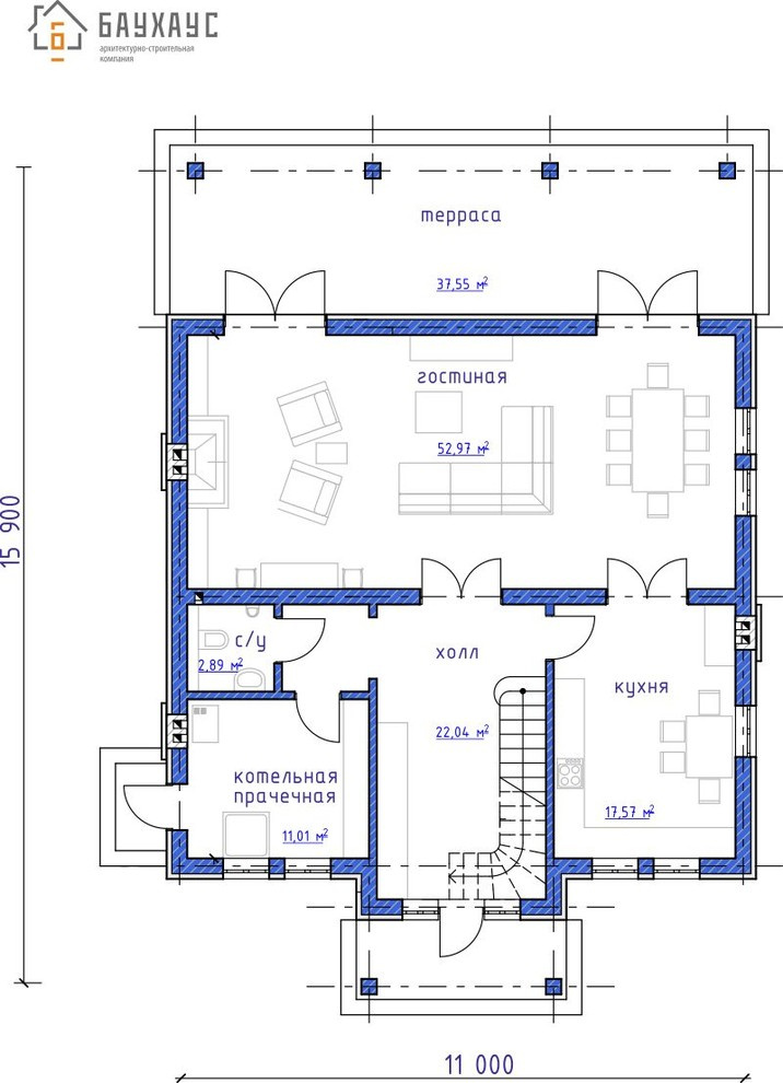
Площадь: 204,41 м2 . Автор проекта: Хлымов .Е . Начало работ: август 2015 . Окончание работ: июнь 2017 . Строительство загородного дома для одной семьи в пос. Заостровье . Материал стен - газобетон 300 мм . Фундамент - монолитная плита . Перекрытие - монолитное железобетонное . Материал кровли - керамическая черепица
Год реализации: 2017
Стоимость проектирования: 34 999 ₽
50 фотографий


















































