logo

Проект дома в Калининграде № 32

Год реализации: 2017
Калининград
photo

7 фотографий

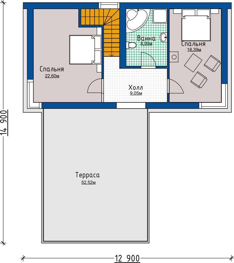
Проект дома в Калининграде № 32
Проект дома в Калининграде № 32
Проект дома в Калининграде № 32
Проект дома в Калининграде № 32
Проект дома в Калининграде № 32
Проект дома в Калининграде № 32
Проект дома в Калининграде № 32
Проект дома в Калининграде № 32
Проект дома в Калининграде № 32
Проект дома в Калининграде № 32
Проект дома в Калининграде № 32
Проект дома в Калининграде № 32
Проект дома в Калининграде № 32
Проект дома в Калининграде № 32
Фоновое изображение профиля Баухаус
Фото профиля Баухаус

Баухаус

Проектирование и строительство