Современный комфорт для двоих: стильные 41 м²
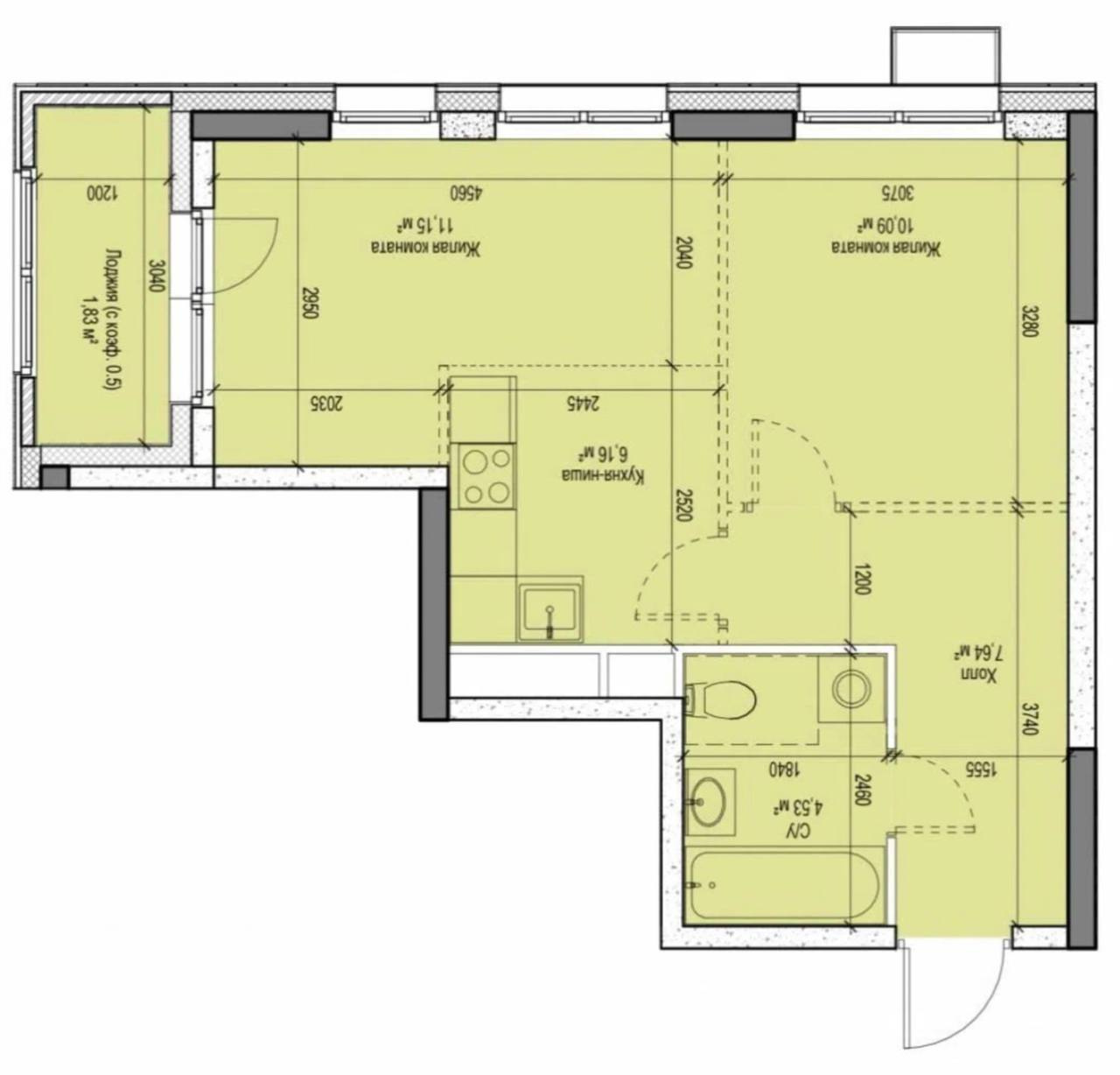
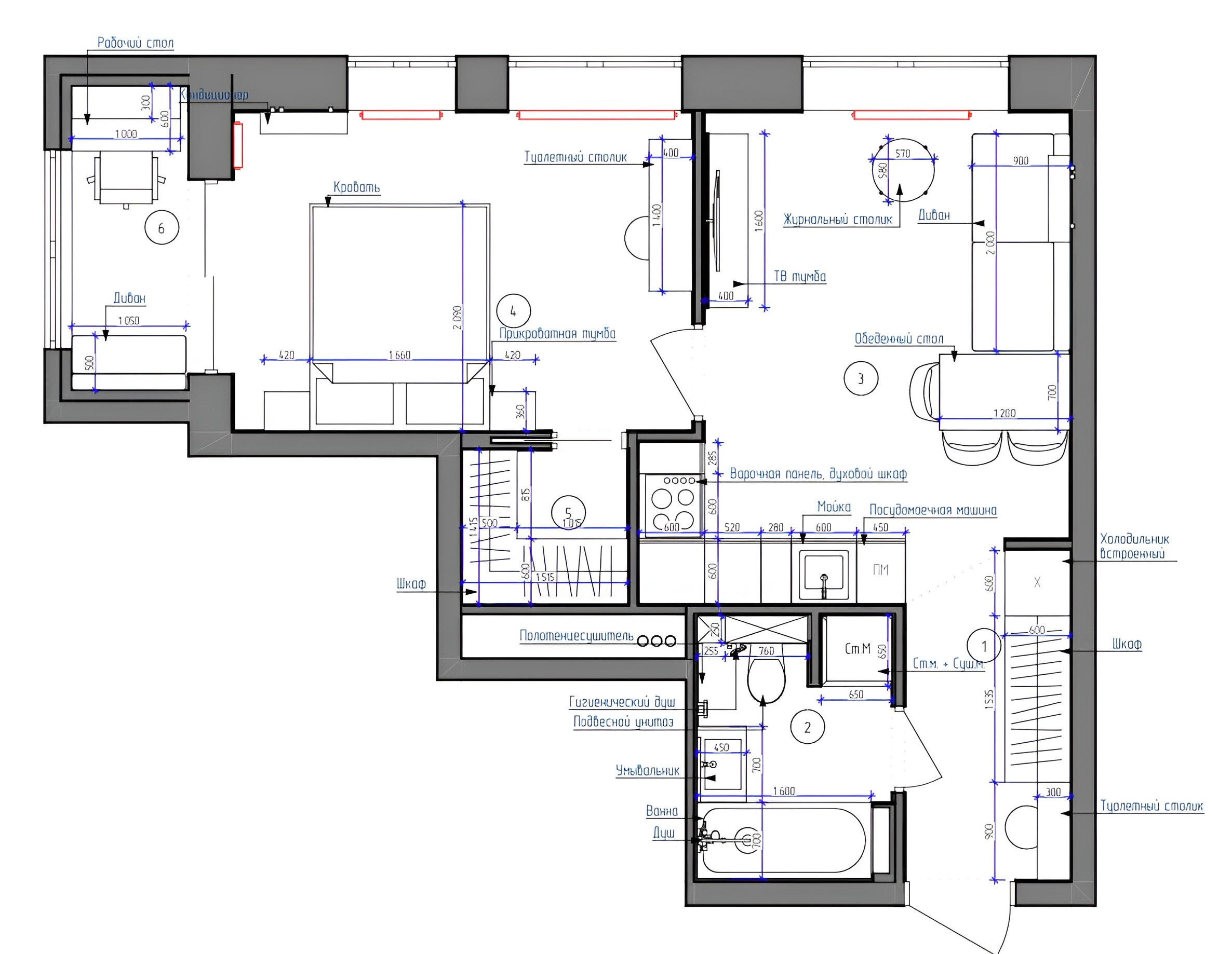
Современный минимализм и тепло дерева: как мы разместили всё для молодой пары на 41 м² Где находится: Москва. Тип жилья: Квартира, 41 м². Для кого: Молодая пара. Проблема клиента: Заказчики пришли с типовой планировкой от застройщика, которая им категорически не подходила. Главные боли и ограничения: Страх тесноты: Ребята были уверены, что на 41 квадратном метре невозможно уместить все их «хотелки», и им придется жертвовать комфортом ради свободного места. Конфликт желаний и площади: Супруга очень хотела свою гардеробную и личный туалетный столик, а супругу было жизненно необходимо тихое рабочее место для удаленки. Бытовой хаос: Никто не хотел видеть сушилки для белья посреди комнаты и громоздкие шкафы, «съедающие» пространство. Заказчики хотели видеть чистый, современный минимализм с элементами дерева. Решение, которое мы предложили: Мы полностью переработали базовый план от застройщика и доказали, что грамотная планировка творит чудеса. Мы уместили абсолютно все зоны, о которых мечтали заказчики: Кухня-гостиная без компромиссов: Мы поменяли конфигурацию кухни. Чтобы освободить рабочую поверхность для готовки, мы приняли решение - вынесли встроенный холодильник в общий шкаф в коридоре. Обеденную зону расположили рядом с гостиной: теперь паре максимально комфортно ужинать и смотреть ТВ. Скрытое хранение в прихожей: Спроектировали большую и вместительную систему хранения. Чтобы коридор не выглядел глухим тоннелем, использовали красивые стеклянные тонированные дверцы -они добавляют интерьеру воздуха и легкости. Спальня мечты: Благодаря переносу некоторых зон, нам удалось выкроить в спальне место под ту самую полноценную гардеробную! Там же логично и красиво разместился туалетный столик заказчицы. Изолированный кабинет: Лоджию при спальне мы превратили в теплый, светлый и комфортный мини-офис для работы супруга. Функциональный санузел: Грамотно рассчитали каждый сантиметр и встроили колонну из стиральной и сушильной машин. Итог: На 41 м² мы создали крутую, математически выверенную планировку. Заказчики получили функционал полноценной «двушки», сохранив эстетику минимализма и простор.
25 фотографий

























