Современный частный дом в Крыму
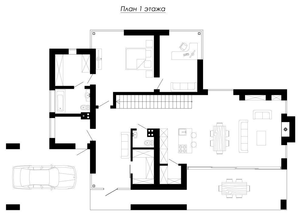
Эскизный проект современного двухэтажного частного дома, выполненный в стилях: хай-тэк, минимализм, кубизм. Регион строительства - Крым. Этот дом будет одной из построек большого комплекса, которые разместятся на участке в 4 гектара в предгорьях Крыма. Также в комплекс войдут небольшой винодельческий завод и туристический комплекс. Непосредственно сам этот дом предназначен для проживания хозяина с семьёй (4 человека). . Все здания комплекса будут выдержаны в одном стиле - в том же, что и данный проект. Современная минималистичная архитектура с плоскими кровлями, с панорамными окнами, с белым штукатурным фасадом, с большими террасами, перголами и козырьками для защиты от солнца - максимально полно отвечает особенностям места строительства - региона с сухим, мягким климатом и преобладанием солнечных дней. . Дом представляет из себя комбинацию из кубов разной формы и высоты, что обусловлено функциональным зонирование его пространства. Основная зона - общее единое пространство гостиной-кухни-столовой с высоким потолком (4,1 м) и панорамным окном на всю стену, которое представляет из себя сдвижную оконную систему. Через неё попадаем на просторную террасу, примыкающую к дому. Так как эта сторона южная, то было необходимо обеспечить защиту помещений от интенсивного ленего солнца. Для этой цели над террасой размещена пергола. . В гостиной сделан камин (с большой топкой Brunner Architektur-Kamin), который выступает на фасаде - в лучших традициях американских ранчо где-нибудь в Аризоне или Техасе. . Вторая зона - жилая. Её объём перпендикулярен общей зоне и имеет 2 этажа. На 1м этаже расположена мастер-спальня с собственным сан.узлом и гардеробом. К спальне примыкает кабинет хозяина дома. По одномаршевой лестницы попадаем на 2й этаж, где расположены 2 детские комнаты и сан.узел для этих 2х комнат. Окна детских выходят на восточную, южную и западную стороны. И здесь также, как и в гостиной было необходимо обеспечить защиту от солнца. Для этого над окнами сделан широкий козырёк - выступающая часть плоской кровли. . Со стороны дороги и подъезда дом максимально закрыт для обеспечения приватности: с этой стороны размещены крытая автостоянка на один автомобиль и техническая зона с котельной. . Кровля плоская неэксплуатируемая, хотя при желании её можно использовать, чтобы загарать. . Общая площадь: 199,3 м.кв. . Внешние габариты: 20,7 х 13,3 м. . Высота 1 этажа: 2,8 м, в гостиной-кухне-столовой: 4,1 м. . Высота 2 этажа: 2,6 м. . Цоколь/подвал: нет. . Конструктивная схема: несущий ж/б монолитный каркас. . Фундамент: монолитная ж/б плита. . Наружные стены: ракушечник. . Перекрытия: монолитная ж/б плита. . Кровля: плоская с гидроизоляционным покрытием из полиуретановой мастики Hyperdesmo . . Отделка фасада и цоколя: штукатурка, крупноформатный керамогранит, термированный планкен из ясеня.
8 фотографий









