Проект гостевого дома S-70-90
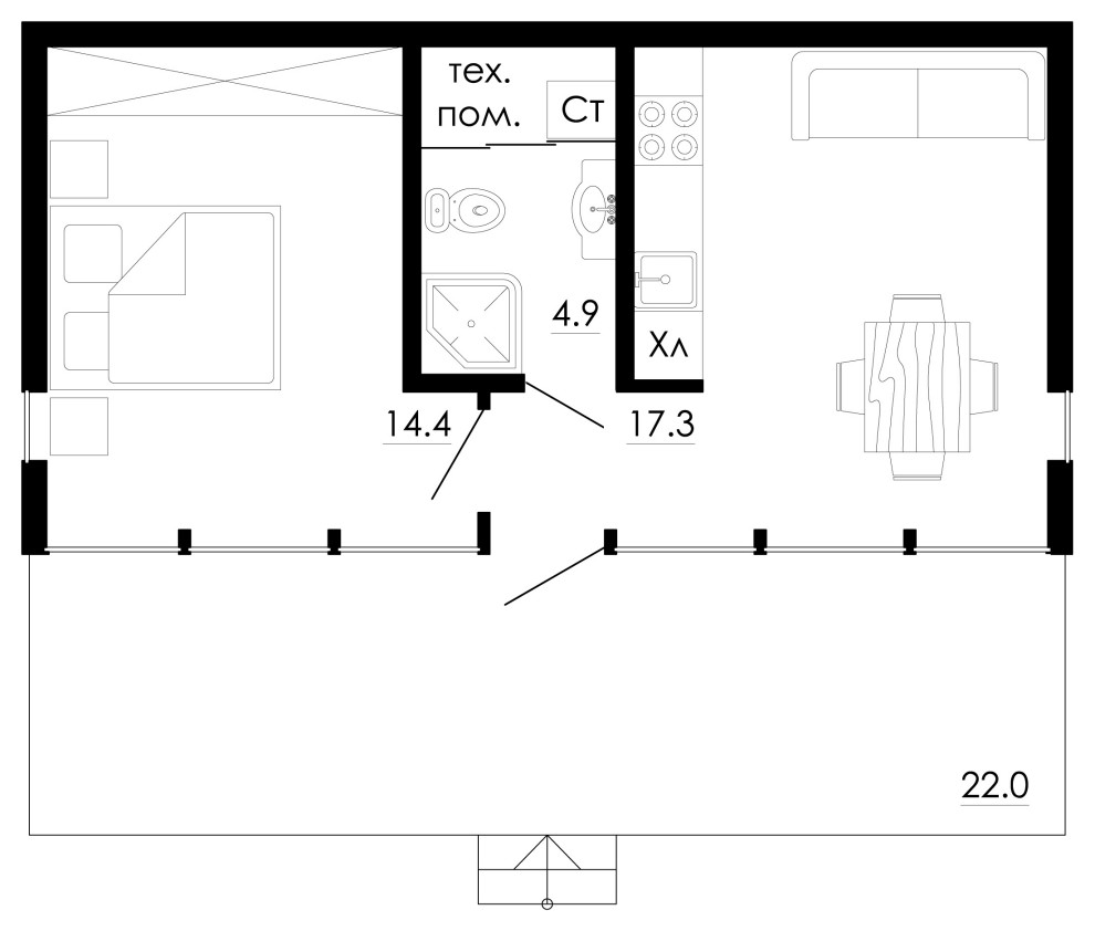
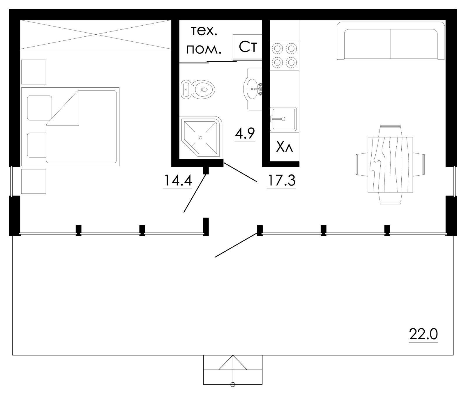
Проект небольшого гостевого / туристического дома для глэмпинга в Северной Осетии, разработанный в 2023 году. Проект в современном минималистичном стиле. Отделка фасада из натуральной (термированной) древесины и светло-серой стали отлично вписываются в окружающие скалистые пейзажи, которые эффектно отражаются в витражном остеклении главного фасада дома. . Дом семейного типа, рассчитан на пару с 1-2 детьми. Состоит их 4 помещений: небольшой прихожей, гостиной (оборудованной небольшой кухней), сан. узла (в котором также располагается техническое помещение) и спальни. Вдоль всего главного фасада вытянута просторная крытая терраса.
Год реализации: 2023
Стоимость проектирования: 135 000 ₽
10 фотографий











