logo
Проект гостевого дома S-70-90

Другие фотографии в проекте Проект гостевого дома S-70-90

Вопросы к фото 0

Задайте вопрос

Вам ответят эксперты. Пришлем уведомление, когда вам ответят

Скандинавский, гостевой, мини-дом, минимализм, проект дома, скандинавский

Дмитрий

Дмитрий

Архитекторы

Смотреть профиль

23

отзыва

4.78

Рейтинг

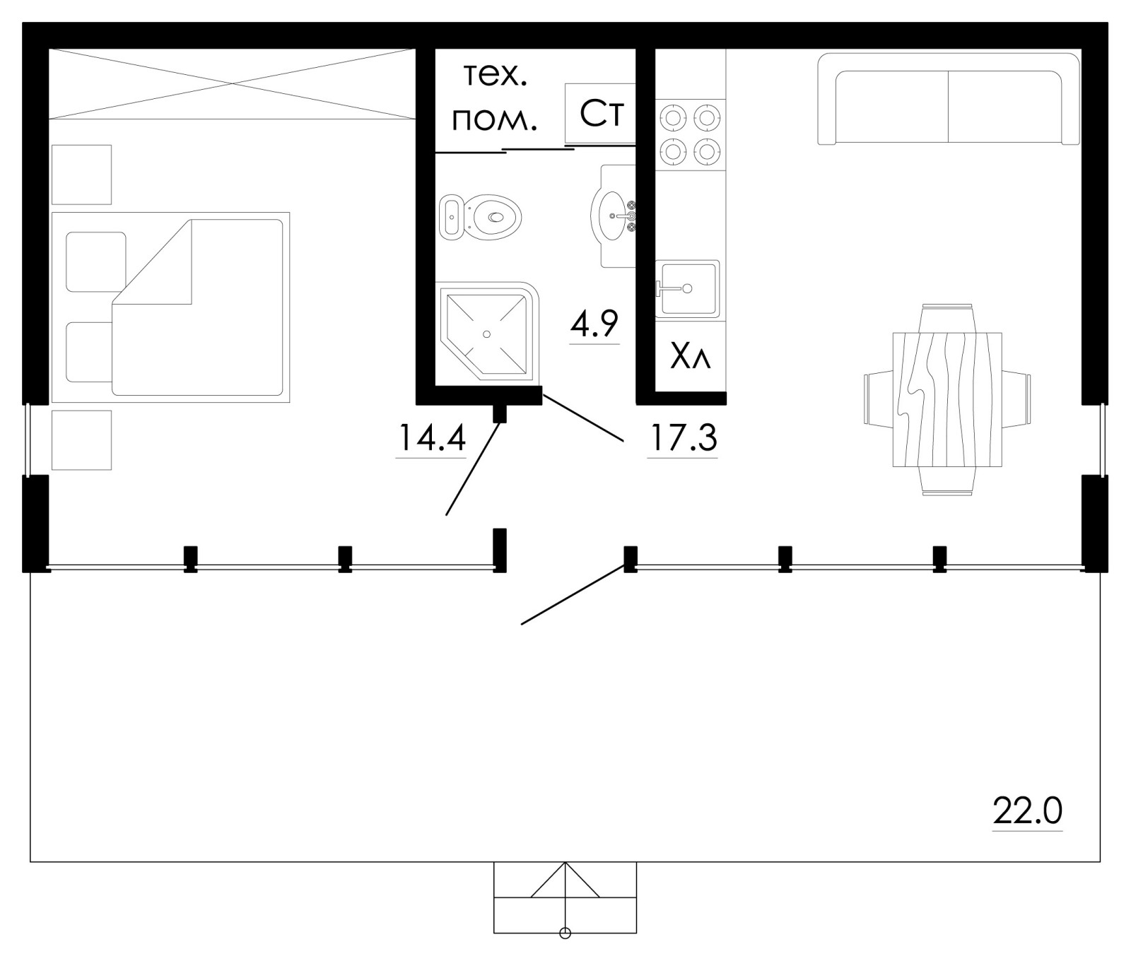
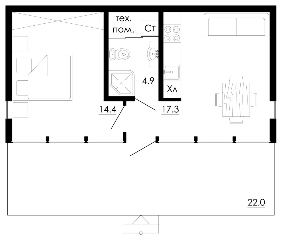
Проект гостевого дома S-70-90

Проект небольшого гостевого / туристического дома для глэмпинга в Северной Осетии, разработанный в 2023 году. Проект в современном минималистичном стиле. Отделка фасада из натуральной (термированной) древесины и светло-серой стали отлично вписываются в окружающие скалистые пейзажи, которые эффектно отражаются в витражном остеклении главного фасада дома. . Дом семейного типа, рассчитан на пару с 1-2 детьми. Состоит их 4 помещений: небольшой прихожей, гостиной (оборудованной небольшой кухней), сан. узла (в котором также располагается техническое помещение) и спальни. Вдоль всего главного фасада вытянута просторная крытая терраса.

Вопросы к фото 0