СОВРЕМЕННАЯ ЛЕГКОСТЬ
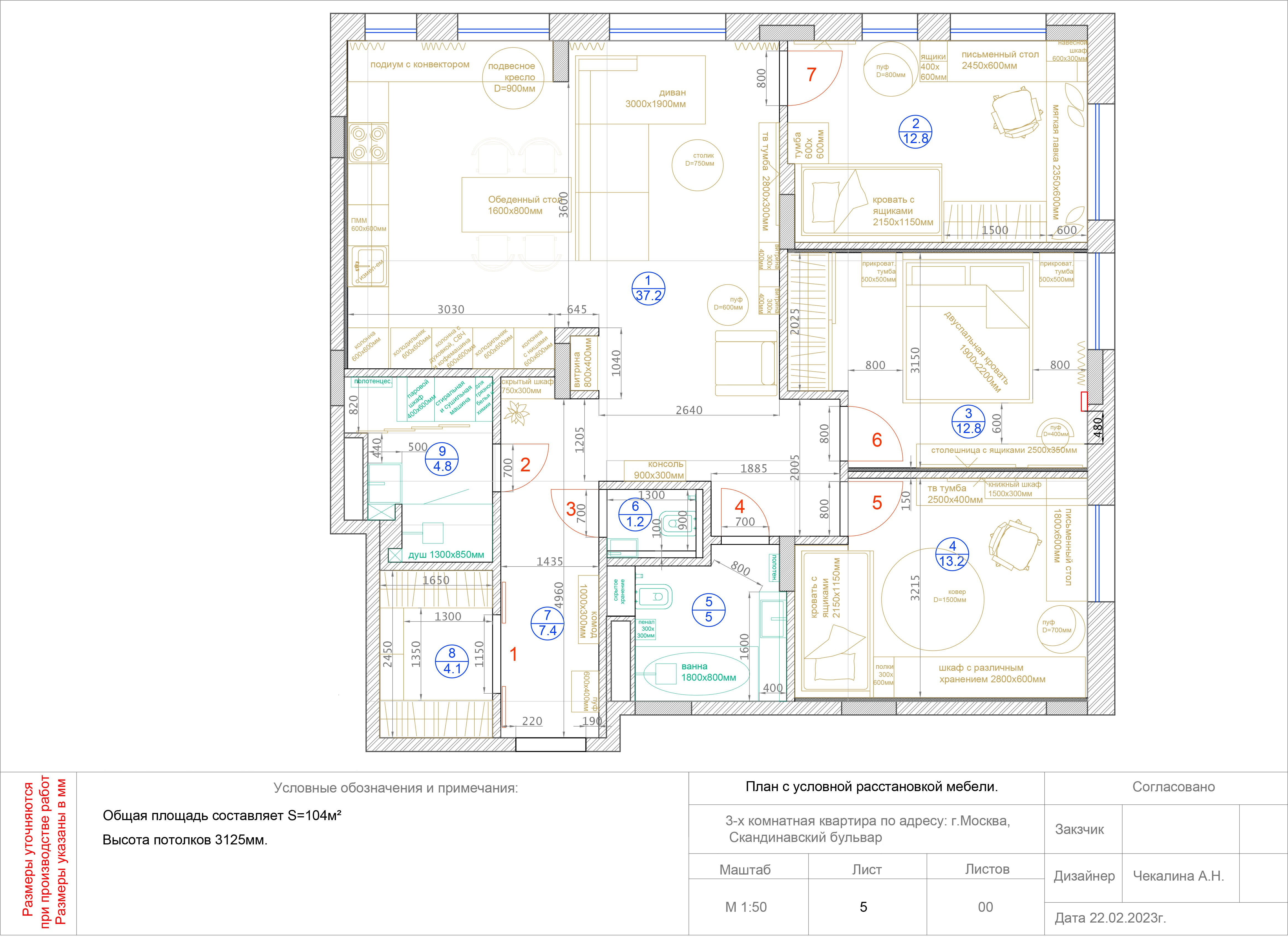
Дом располагается в новой Москве - рядом с большим лесным массивом и чудесными видами из окон. Панорамные окна дают акцент в интерьере на естественное освещение. Светлый, элегантный и функциональный интерьер сложился для семьи с двумя чудесными дочерьми. Работа над планировочным решением была грандиозная: на площади в 104 кв.м. мы расположили девять помещений. Центральное пространство кухни-гостиной занимает главенствующее положение в 40 кв.м., с удобными зонами отдыха и функциональной зоной приготовления еды. В таком большом пространстве динамичным образом расположены различные отделочные материалы так, чтобы пространство было зонировано и привлекало взгляд своей сложносочиненной отделкой. При входе в квартиру попадаешь в просторный коридор с просторной гардеробной, гостевым санузлом и многофункциональным помещением с постирочным блоком и душевой. У каждой из дочерей имеется своя комната с оригинальным дизайном, наполненная светом и продуманная до мелочей. Между двумя детскими комнатами расположилась изящная спальная комната родителей, вблизи которой находится просторная ванная комната. Разработанная эргономика всего пространства уникальна, поскольку она выполнена именно для этой семьи - с учетом ее нужд и потребностей. Дизайнерское оформление подчеркивает планировочное решение и становится продолжением эстетического восприятия прекрасного для всех членов семьи. Правильное сочетание эргономики и дизайна создает именно тот самый комфорт и уникальность интерьера.
62 фотографии


















































