Солнечный дом
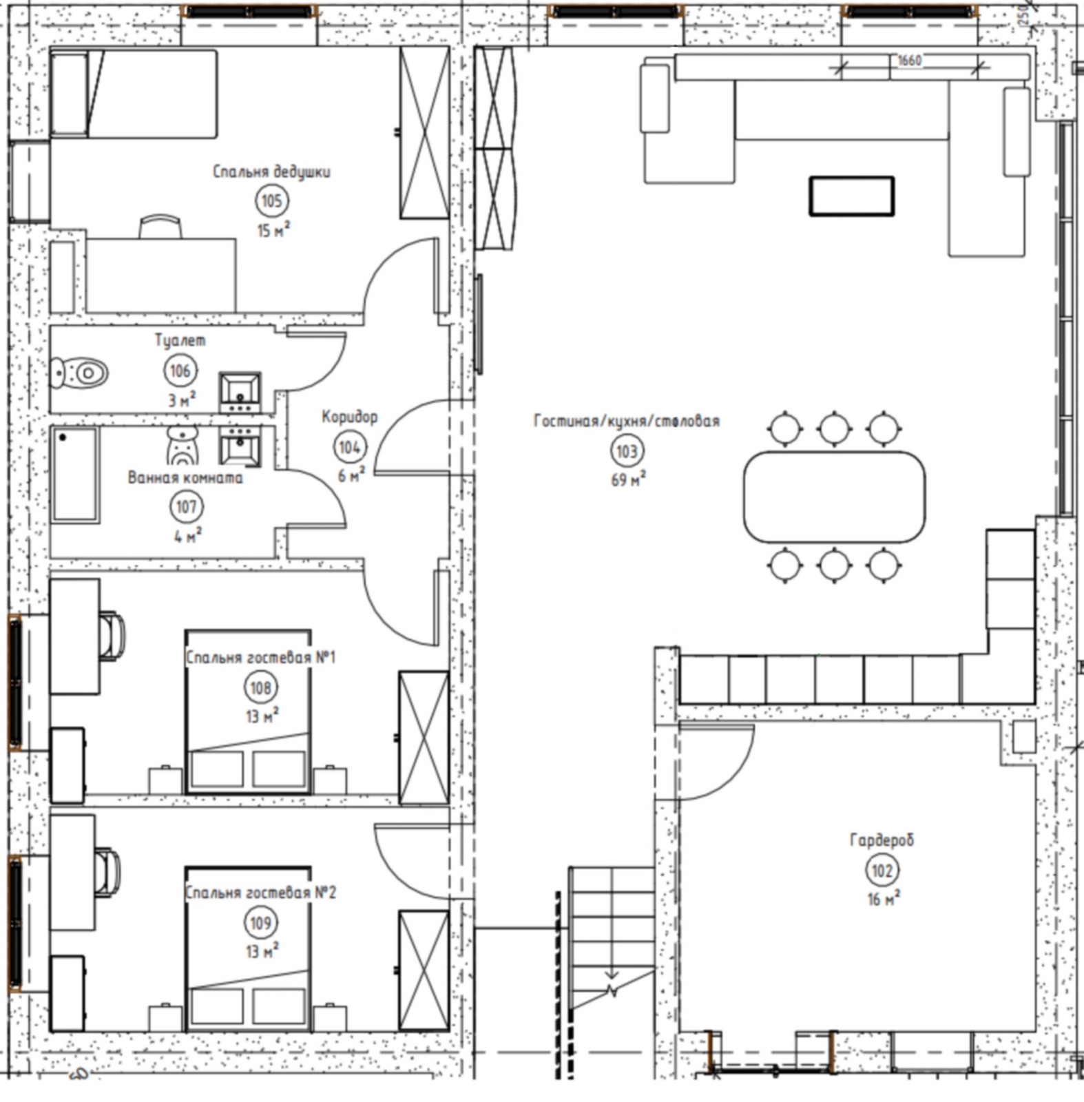
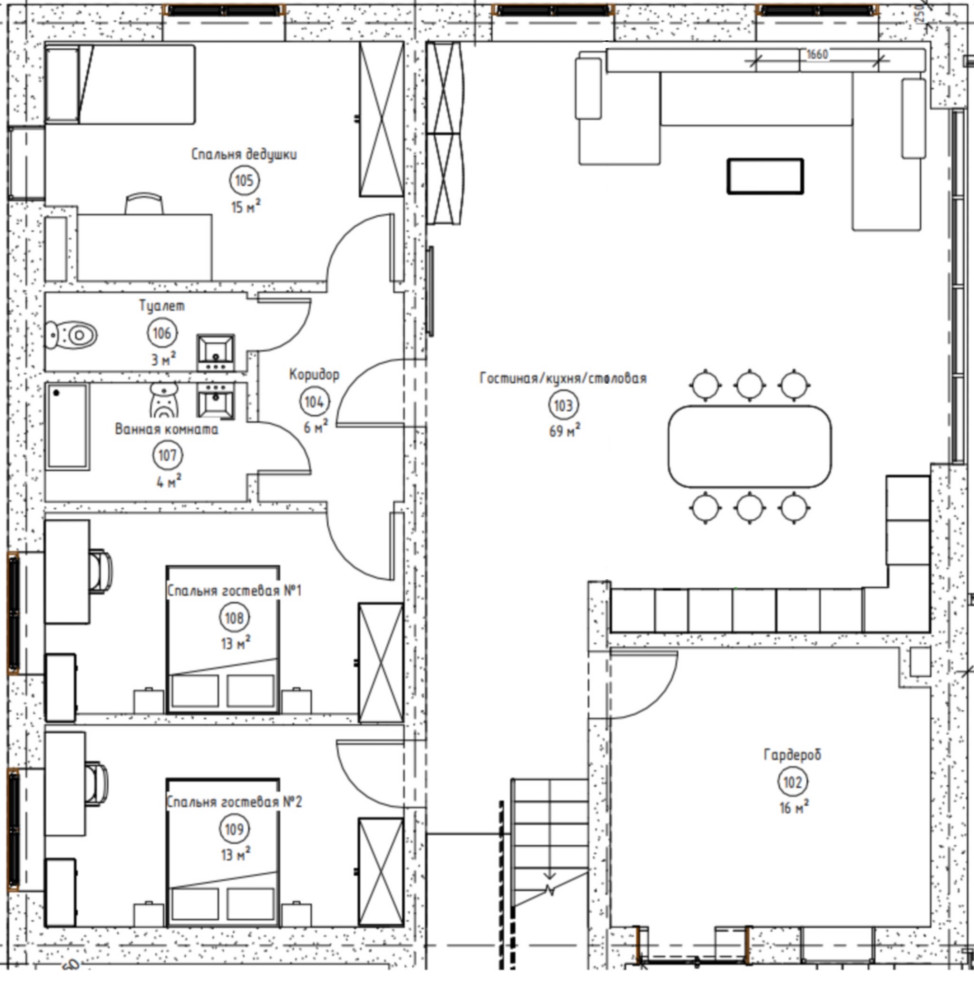
Первый этаж загородного дома. Пожелание заказчика: создать большое уютное и открытое пространство для проведение время в большой компании.
Год реализации: 2023
Стоимость проектирования: 5 250 000 ₽
9 фотографий
Первый этаж загородного дома. Пожелание заказчика: создать большое уютное и открытое пространство для проведение время в большой компании.
9 фотографий
