«Колибри» Квартира для моло
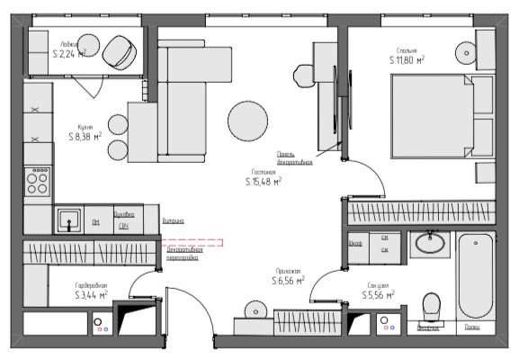
В относительно небольшом помещении удолось разместить гардеробную, отдельный хоз. блок, оставить много пространства в общей зоне. . За счёт зеркала на пилоне я растварила его в пространстве и визуально расширила помещение.
Стоимость проектирования: 5 250 000 ₽
г. Москва
12 фотографий













