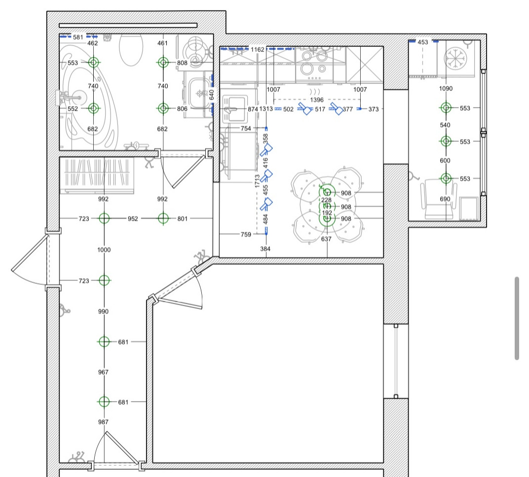
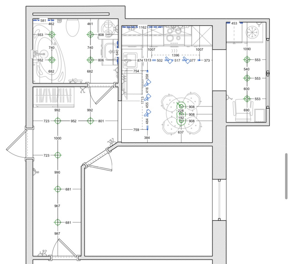
Смоленск экспресс проект за неделю.
Партнер прораб из Смоленска попросил сделать быстро клиенту проект чтобы можно было приступить к ремонту как можно скорее. Спрятали газовую колонку в шкафу, расширили кухню за счет балкона без демонтажа стен. Учли все пожелания клиента и удивили быстрым выполнением проекта с помощью нейросети, учитывая архитектуру пространсива.
Год реализации: 2024
Стоимость проектирования: 34 999 ₽
г. Смоленск
7 фотографий








