SIMPLEX 180-1
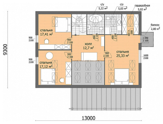
Дом Simplex 180-1 – как океан. В него хочется нырнуть с разбега. Коттедж создан для тех, кто любит загородное спокойствие, свежий воздух и предпочитает экосумки вместо одноразовых пакетов. . . Дом строится по каркасной технологии с элементами стиля Barn Homes (амбарный дом), главное кредо которого – пространство и воздух. Здесь затейливые высокие потолки перекликаются со стандартными, а второй этаж больше состоит из окон, чем из стен. Это место, где, лежа в постели, вы будете наблюдать за звездопадом в августовскую ночь. . . Большая кухня, просторнейшая гостиная и четыре большие жилые комнаты со спальней в 25 м², с собственным гардеробом и санузлом. То, что нужно для семьи с детьми, собакой и, возможно, роялем. Здесь есть где разбежаться детям и достаточно места, чтобы спрятаться от их шума с любимой книгой. Выбирайте энергоэффективный дом SIMPLEX 180-1 и погрузитесь в жизнь в своем уютном пространстве с головой.
3 фотографии


