Axiom 120-2
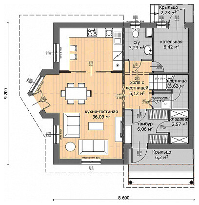
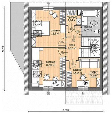
Дом с планами на счастье . . Дом – воплощение скандинавского комфорта. Он просторный и невероятно уютный, светлый и одновременно укромный, с легким послеобеденным полумраком домика в лесу. Выбирайте дом AXIOM 120-2, он спроектирован именно для вас – любителей древесного треска у камина и просмотра хороших фильмов после рабочего дня. . . Коттедж создан для бодрящих завтраков, семейных вечеров и посиделок на полукруглой веранде. Вы будете смотреть семейные комедии воскресными вечерами и говорить по душам до рассвета в кругу друзей. . . Это прекрасное место, где будут расти ваши дети, а отметки в дверном проеме навсегда это запечатлеют. Здесь три большие жилые комнаты, гардеробная и кухня-гостиная площадью 36 квадратов. В доме больше чем достаточно места, чтобы разместить тонны детских игрушек, обставить уютную спальню в стиле шале и наконец-то заполучить свой собственный кабинет. . . Дом AXIOM 120-2 – это то место, где вы наконец-то полюбите снежную зиму и почувствуете всю прелесть загородного лета с барбекю на террасе. Выбирайте строительство коттеджа под ключ и заезжайте в готовый дом через 4,5 месяца.
5 фотографий





