SERENITY
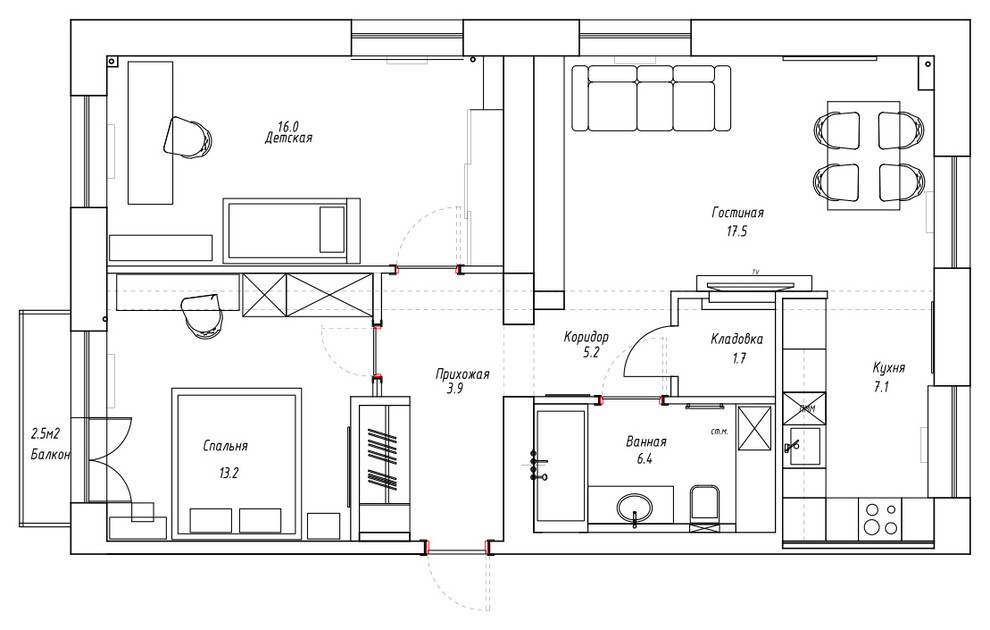
Трехкомнатная квартира для молодой семьи. Общей площадью 76м2. Высота потолков 3,1м. В старом кирпичном пятиэтажном доме в районе метро Аэропорт. . Задача стояла спроектировать удобную квартиру, наполненную воздухом и светом. Подчеркнуть главные преимущества этого пространства - высокие потолки и большие окна, которые расположены по трем сторонам квартиры. .
Год реализации: 2016
Стоимость проектирования: 5 250 000 ₽
г. Москва, Северный административный округрайон Аэропорт
33 фотографии

































