Серебрякова. Дизайн проект 2-х комнатной квартиры в новостройке
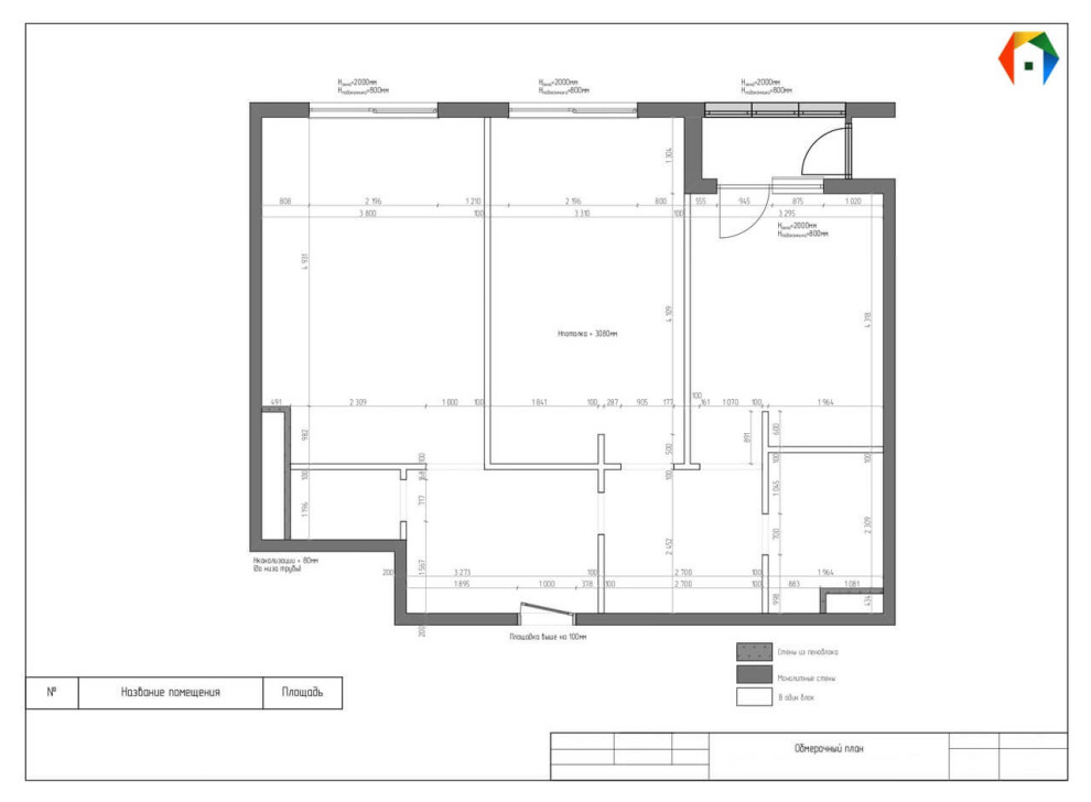
Современный стиль становится самым лучшим способом создания совершенно уникальных интерьеров с оригинальными дизайнерскими решениями. Безупречность, гармония, комфорт и эстетичность. Именно этими качествами можно охарактеризовать наш новый дизайн-проект. . . На формирование планировочного решения повлияло множество факторов, начиная от плана БТИ и предпочтений заказчиков, заканчивая подбором кроватей в детскую. . . Для реализации была предоставлена двухкомнатная квартира площадью 79,15 м2 и задача распланировать интерьер следующих комнат: . . Холл ー15,74 м2; . Санузел ー 2,60 м2; . Кухня ー 22,16 м2; . Детская ー 17,70 м2; . Ванная ー 4,75 м2; . Спальня ー 13,62 м2; . Балкон ー 2,58 м2. . . В ходе перепланировки было решено демонтировать перегородки справа от прихожей. Это дало возможность организовать одно большое пространство (Холл). . . Слева, где должен быть санузел, перегородки у входного проема также запланировано демонтировать, а у стыка стены возле входа в кухню возвести новую перегородку. Такое решение позволило расширить санузел. При этом слева от входа образовалась ниша, где позже будет продумана зона для хранения вещей. . . Монтаж теплого пола спланирован в ванной, санузле и на балконе. Регуляторы теплого пола будут установлены на высоте 900мм в одной рамке с выключателями. . . Пол в холле покрыт белой мраморной плиткой. Для ванной и санузла подобран керамогранит под натуральное деревянное покрытие. Кварцвиниловой светлой плиткой устланы все остальные комнаты. . . По всей квартире продумано несколько сценариев освещения: . ー Основной свет с помощью точечных и трековых светильников по периметру; . ー Дополнительный свет использует светодиодную подсветку в нишах, подсветку полок, зеркал и шкафов, а также бра; . ー Функциональное освещение рабочих зон. . . Дизайн квартиры продуман в одном стилистическом направление. Это использование цветовой гаммы максимально приближенной к натуральным тонам и элементами мебели под дерево. Дополняют интерьер деревянные рейки в нескольких местах. . . Отличается от общего настроения лишь детская. Там своя красочная атмосфера, которая создает уютный уголок для двух маленьких девочек.
20 фотографий





















