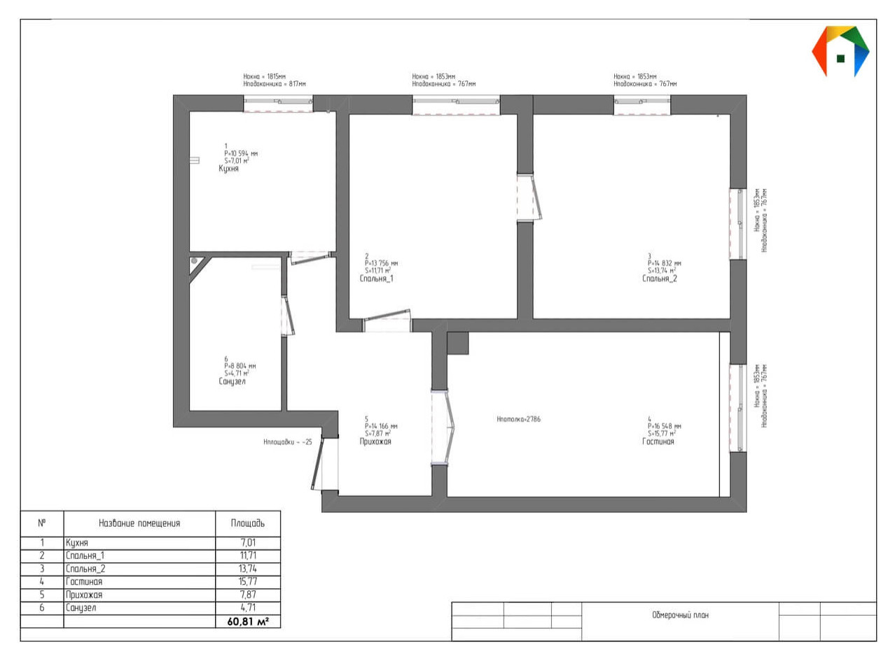
Измайлово. Из трешки в двушку
Год реализации: 2020
Стоимость проектирования: 135 000 ₽
г. Москва, 37 Измайловский бульвар, Восточный административный округ
20 фотографий
20 фотографий

Москвичка. Дизайн для квартиры с солнечной прихожей
Золотой треугольник. Дизайн проект с преобладающим скандинавским стилем
Испанские кварталы. Дизайн-проект с скрытой кухней
Дизайн трешки в песочных тонах
Березовая аллея. Дизайн проект двухкомнатной квартиры
Волоколамское шоссе. Дизайн квартиры с объединенными кухней и гостиной