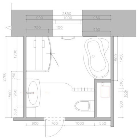
Санузел с ванной и кабиной
Небольшой санузел, реконструкция. С помощью подиума была устранена ранее существующая проблема со сливом из душевой кабины. В отделке -керамогранит, стеклоблоки, искусственный камень.Декор- картинка над ванной- часть стены. На плитке нанесен рисунок, рамка из мраморного молдинга.
Год реализации: 2016
9 фотографий










