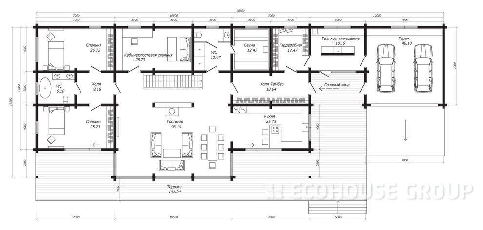
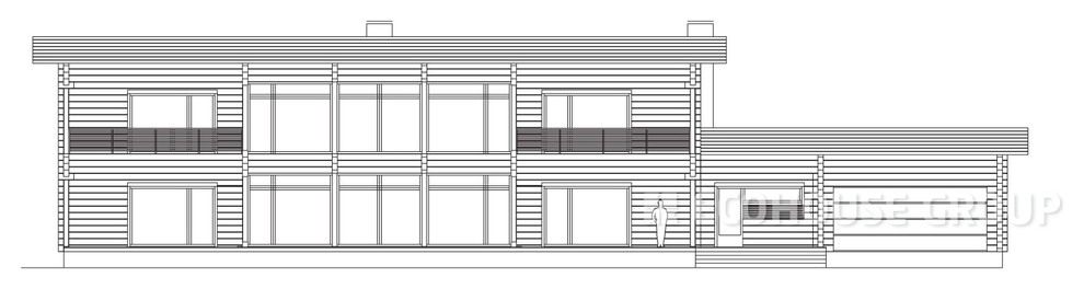
Профиль пользователяСаари 840 м2Год реализации: 20167 фотографийПоделитьсяСохранитьСаари 840 м2ПоделитьсяСохранитьСаари 840 м2ПоделитьсяСохранитьСаари 840 м2ПоделитьсяСохранитьСаари 840 м2ПоделитьсяСохранитьСаари 840 м2ПоделитьсяСохранитьСаари 840 м2ПоделитьсяСохранитьСаари 840 м2ПоделитьсяСохранить