logo
ФотоЭкспертыСтатьи
Профиль пользователя

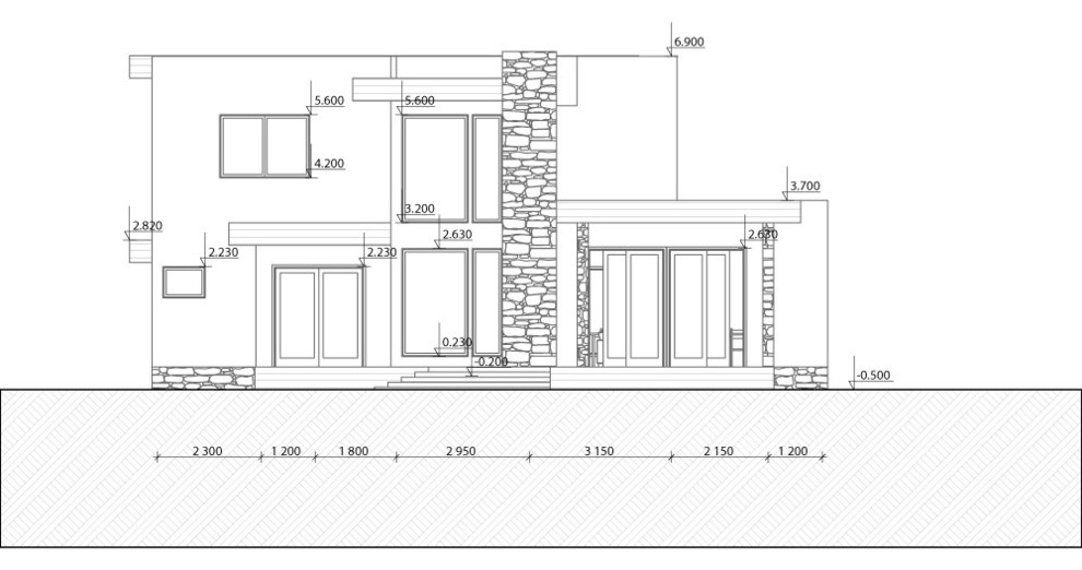
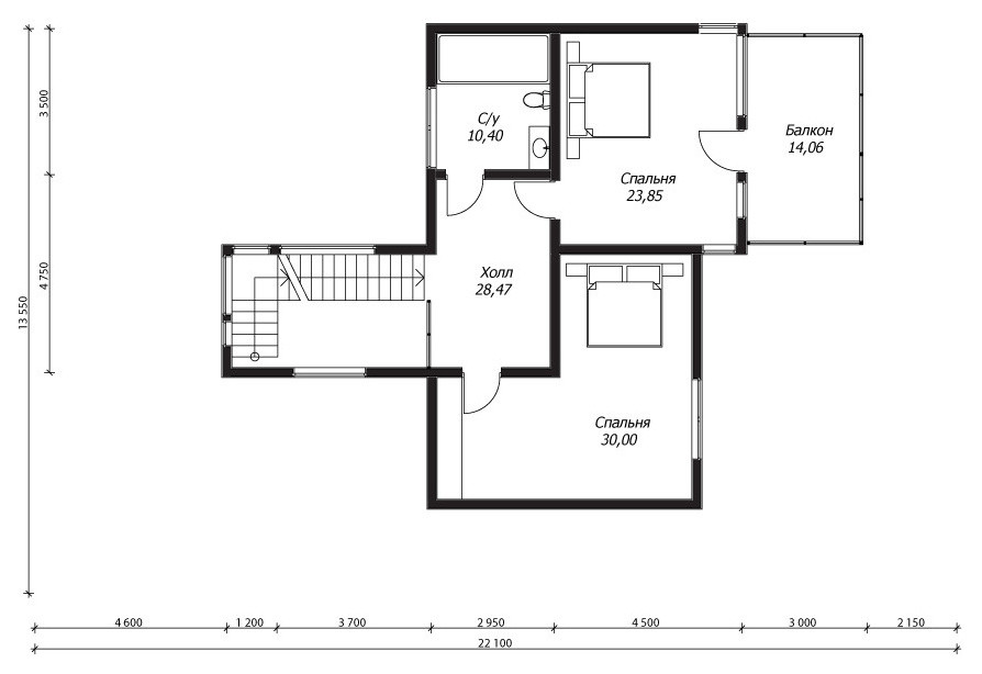
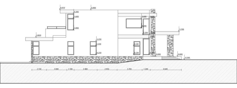
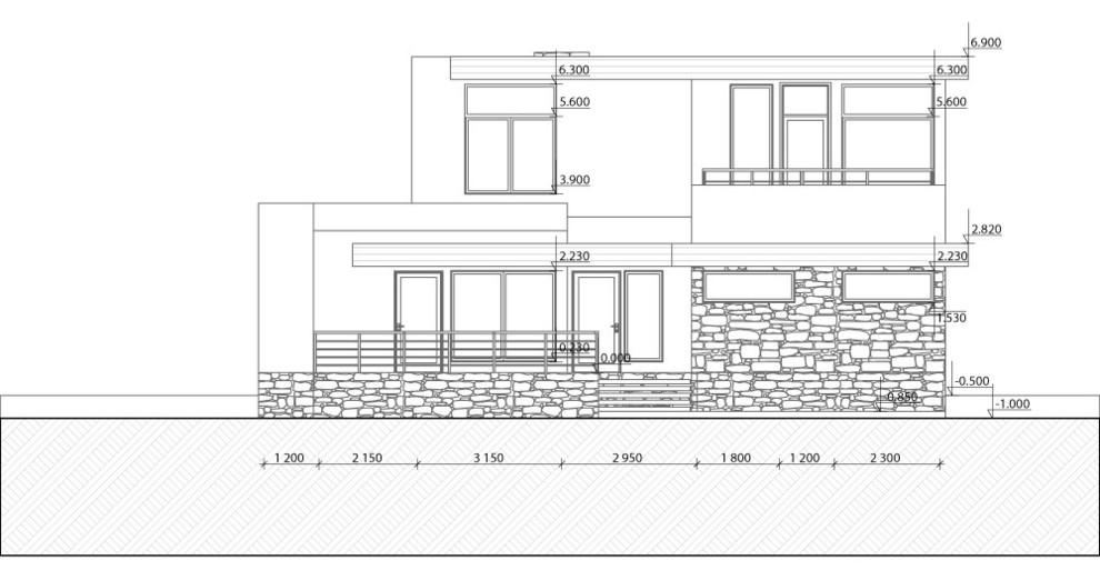
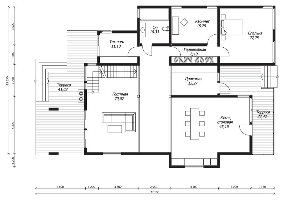
Арья 371 м2

photo

7 фотографий

Арья 371 м2
Арья 371 м2
Арья 371 м2
Арья 371 м2
Арья 371 м2
Арья 371 м2
Арья 371 м2
Арья 371 м2
Арья 371 м2
Арья 371 м2
Арья 371 м2
Арья 371 м2
Арья 371 м2
Арья 371 м2
Фоновое изображение профиля Антонина Шиндина
Фото профиля Антонина Шиндина

Антонина Шиндина

0

0 отзывов

Проектирование и строительство

Контакты

г. Санкт-Петербург, наб. Обводного канала, д. 199-201, лит. И
О насМы в прессеFAQКонтакты
ВкДзенTelegramTelegram Pro
Pro
Instagram

Продукт компании Meta, признанной экстремистской организацией, деятельность которой запрещена в РФ

Связаться с поддержкой
Пользовательское соглашениеПолитика в отношении обработки персональных данных