РОМАНТИЧНАЯ КЛАССИКА С АРОМАТОМ ГОРТЕНЗИИ
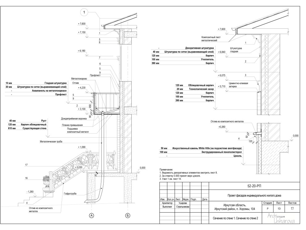
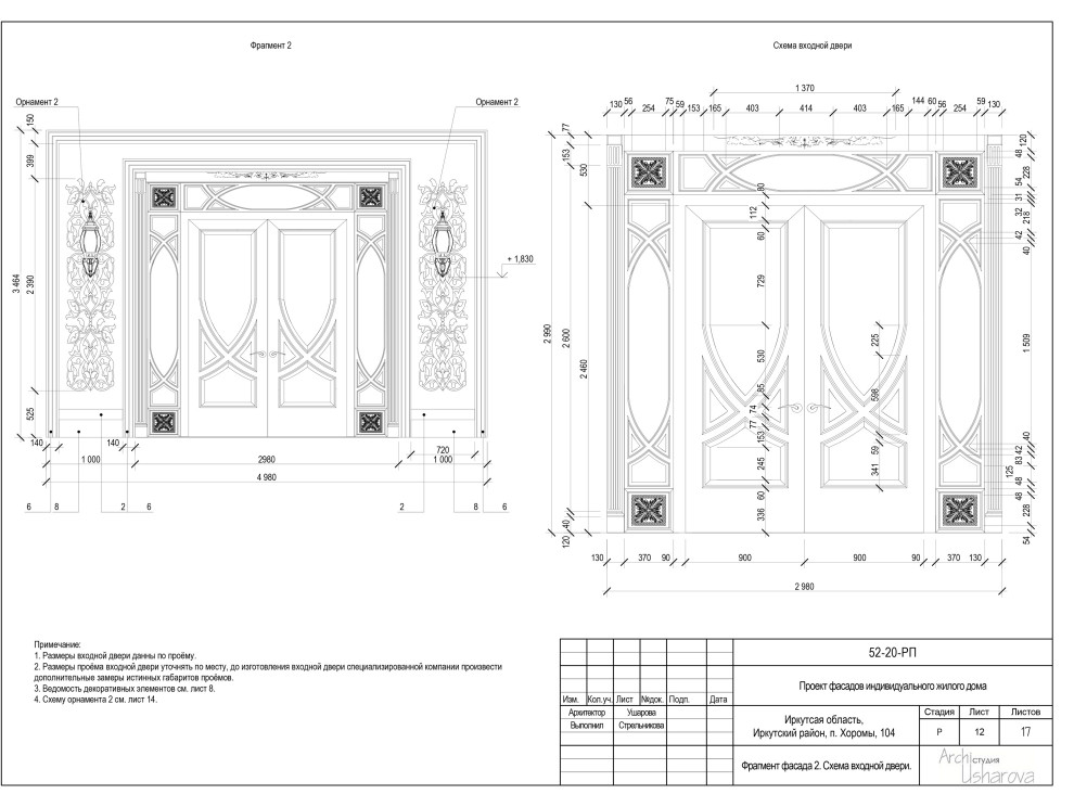
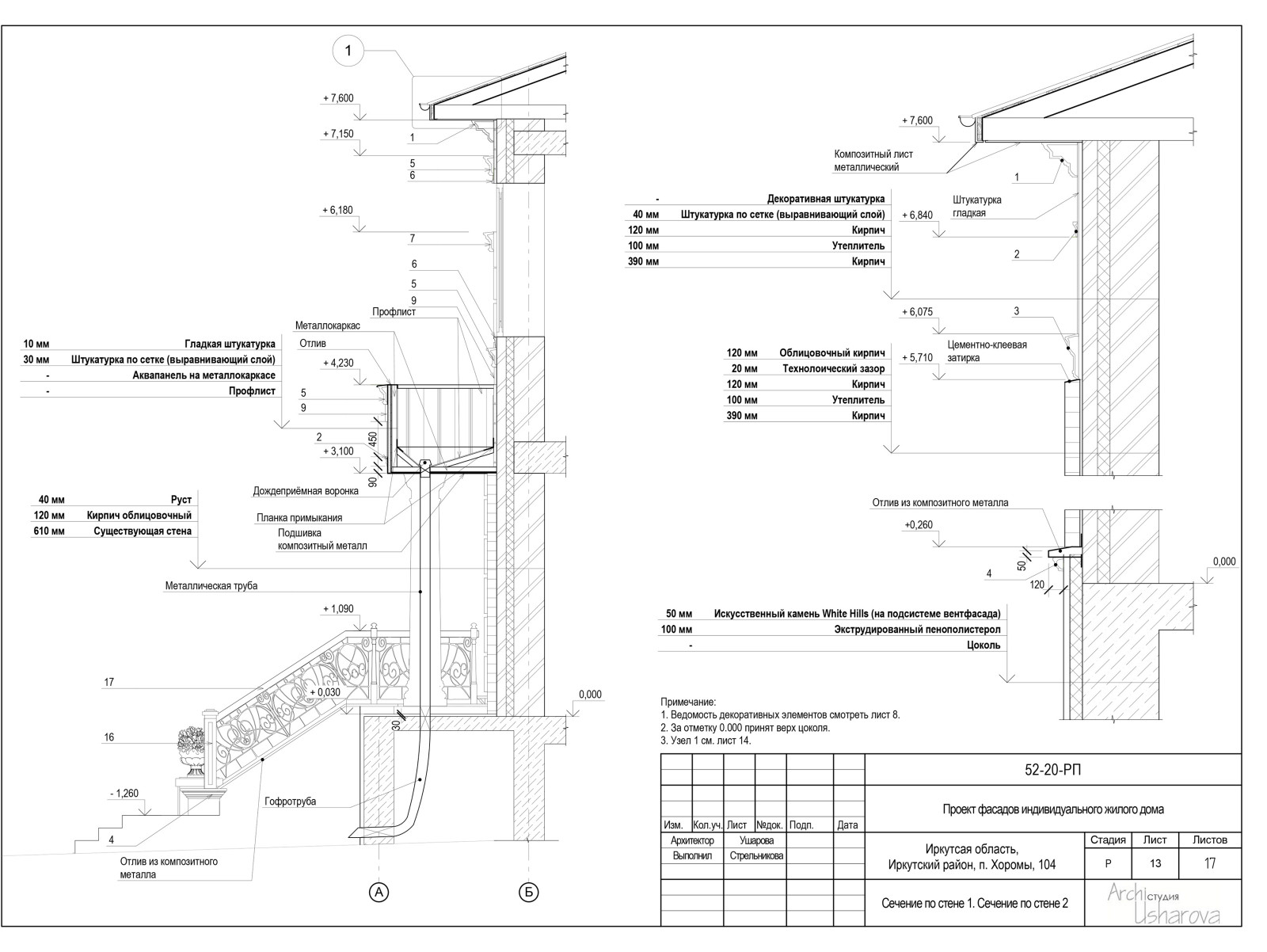
Проект фасадов существующего здания - чтобы понять степень сложности задачи, нужно начинать с ФОТО "ДО..." . Центральный фасад помпезно-симметричного строения был лишен окон и каких либо выступающих объемов. Задача звучала - СПАСИТЕ!!! . Используя архитектурно-декоративные приемы: разные виды отделки, фасадная лепнина, объем навеса крыльца, классические колонны, был достигнут эффект гармоничности стиля и объема здания. На фасаде применена декоративная штукатурка "Травертин", облицовочный кирпич, гладкая покраска, лепной декор, натуральный камень на цоколе.
Год реализации: 2020
16 фотографий

















