ИДИЛЛИЯ ИЛИ ДОМ С КУПЕЛЬЮ
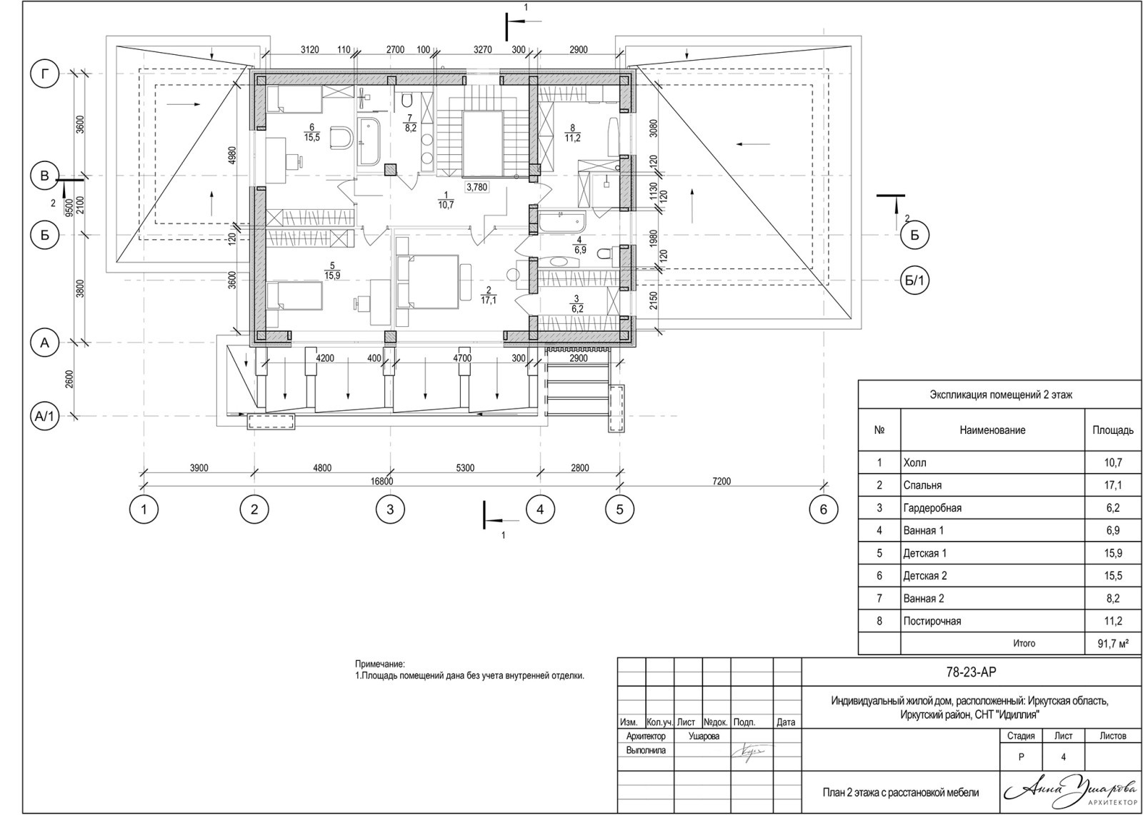
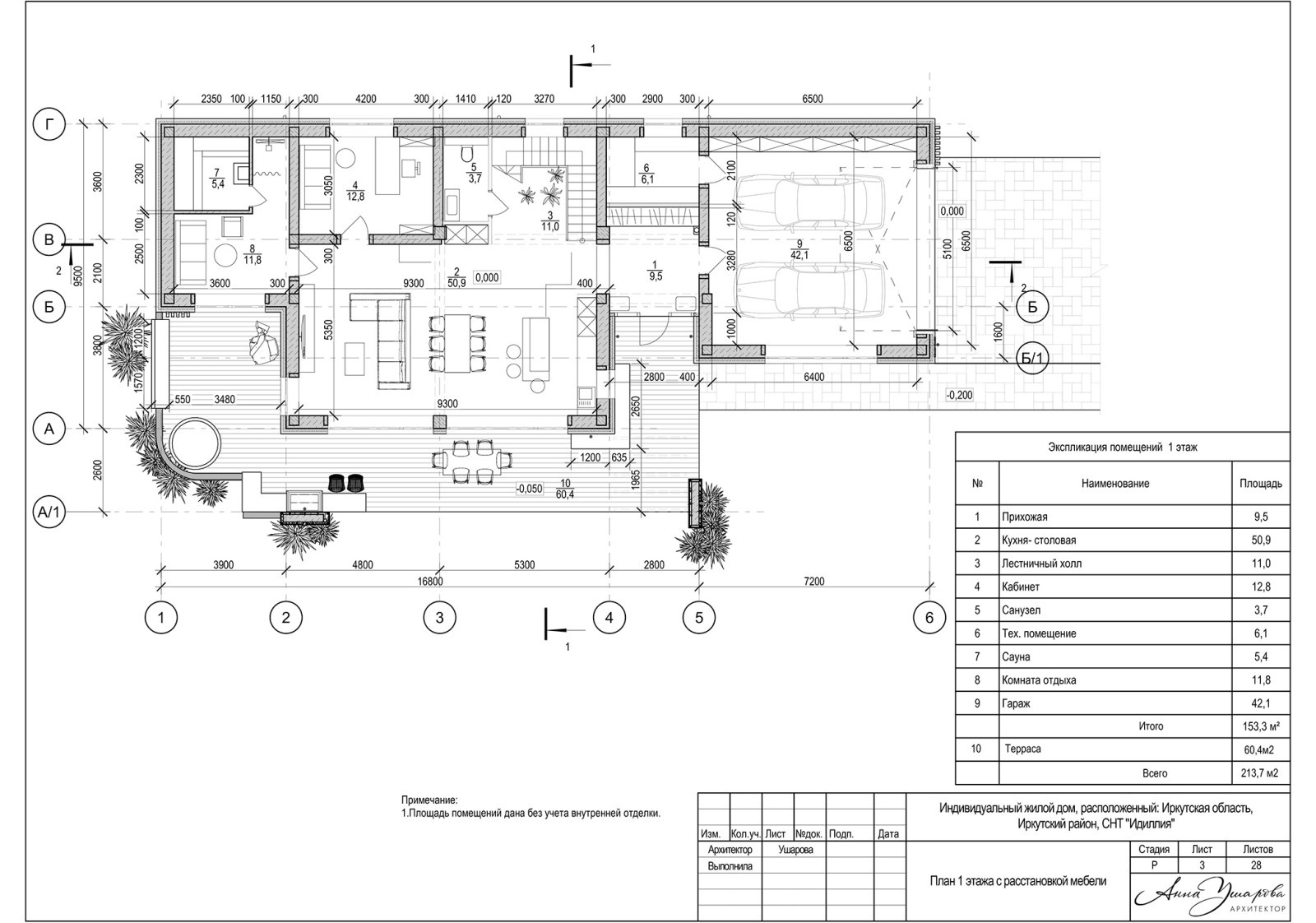
Функциональность рождающая планировку и объемы, подчеркнутая графичностью навесов, карнизов и колонн. . Первый этаж дома - это общие помещения, второй этаж уже приватный со спальнями. Дом с пристроенной компактной СПА зоной имеет общую террасу для всех летних и основных выходов. . Интересно решен вход - он утоплен в объемах дома и акцентирован открытыми деревянными балками навеса и деревянными рейками продолжающих ось на фасаде. . Поднимая голову стоя около дома, человек видит деревянную подшивку, которая добавляет мягкости серому фасаду "под бетон".
Год реализации: 2023
Стоимость проектирования: 525 000 ₽
12 фотографий












