Ремонт в сталинке: до и после
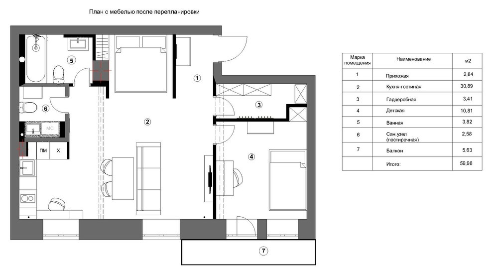
Двухкомнатная квартира в доме сталинской постройки 1956 года по ул. Богдана Хмельницкого в г. Новосибирске. Требовалась полная перепланировка пространства квартиры, необходимо было выделить детскую, гардеробную, два сан.узла, кухню-гостиную, а также организовать полноценное спальное место для взрослых.
Год реализации: 2018
г. Новосибирск
26 фотографий


























