Квартира в ЖК Дождь
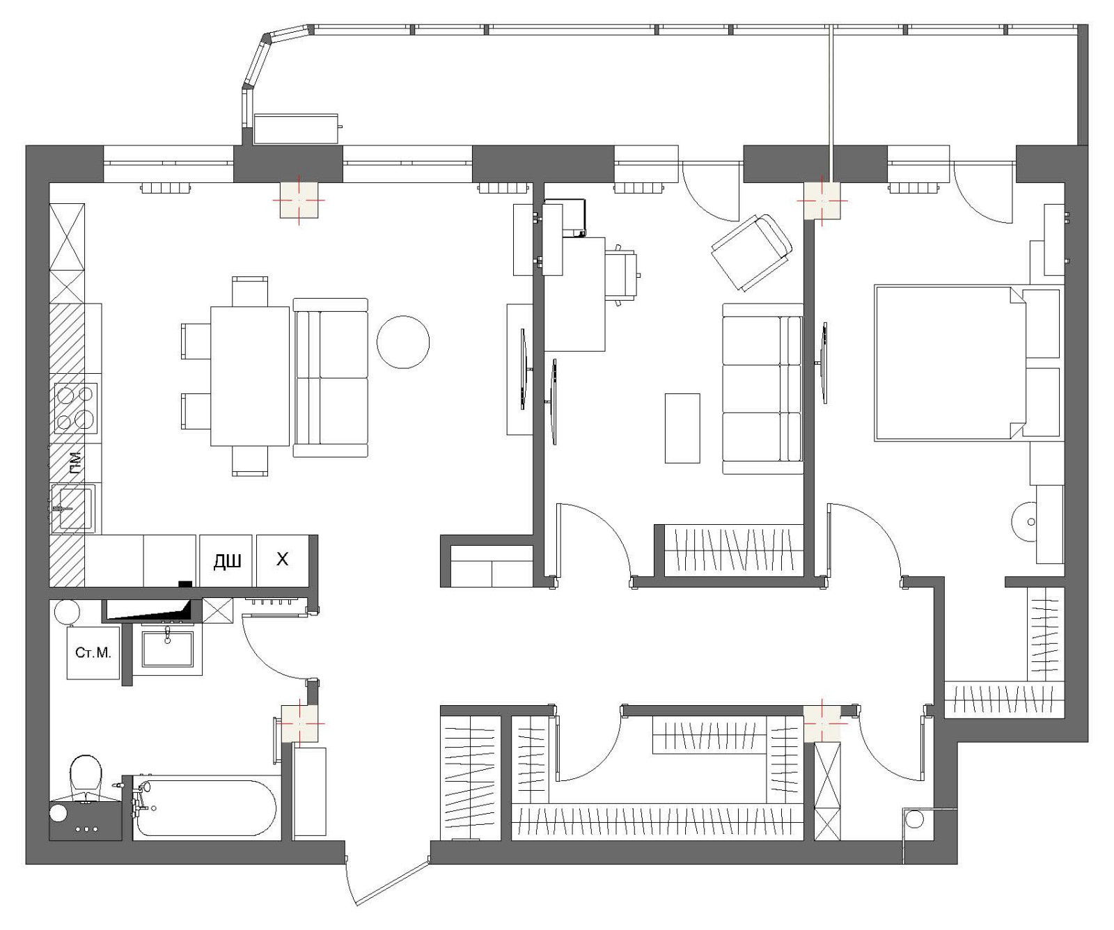
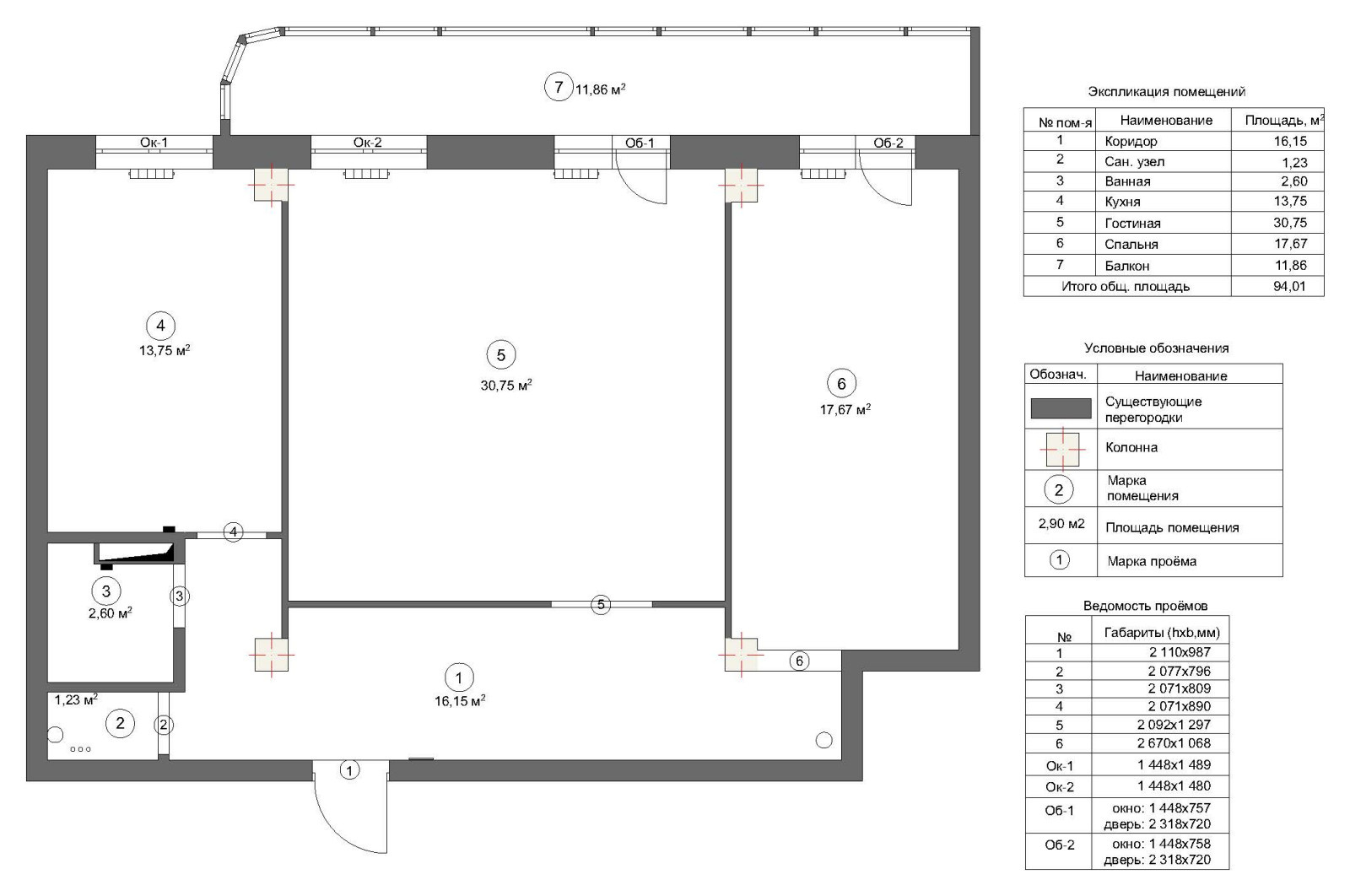
Трехкомнатная квартира 90м2 для семейной пары в современном стиле. Требовалось организовать гостиную, объединенную с кухней, кабинет, спальню, просторную ванную, а также как можно больше мест для хранения.
Год реализации: 2020
г. Новосибирск
15 фотографий















