Реализованный проект квартиры 30кв.м.
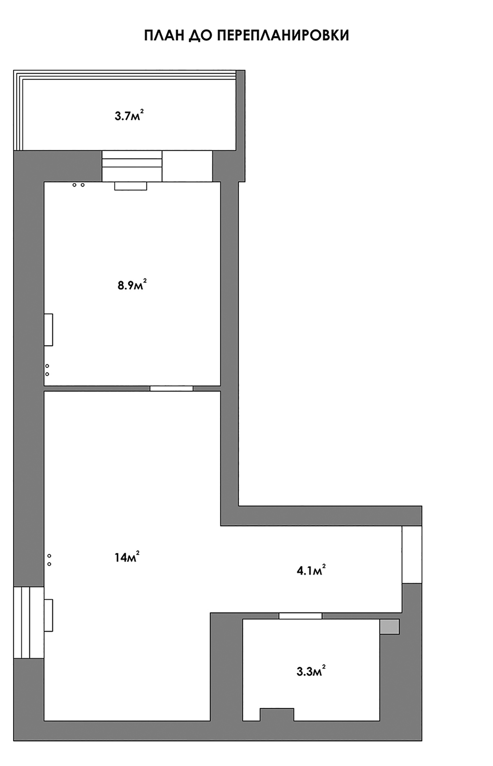
После перепланировки квартиры общей площадью 30кв.м. у нас получилась объединенная зона прихожей и кухни-гостиной, отдельная гардеробная и небольшая изолированная спальня. Для отделки стен и мебели использована ЛДСП с теплой древесной текстурой. Чтобы не было перебора в различных цветовых пятнах и материалах, внутреннюю панель для входной двери решено было также сделать из мебельной ЛДСП. По той же причине дверь в гардеробную по системе Magic Invisible и стены намеренно были выкрашены в один цвет по NCS, а ткань для римской шторы подбиралась максимально близкая к этому цвету. Электросчетчик при входе в квартиру перенести оказалось невозможным, поэтому он закрыт картиной. Таким образом, к нему обеспечен легкий доступ, но в то же время он не портит эстетику прихожей. Чтобы визуально увеличить пространство, стену напротив входа в ванную полностью решили закрыть зеркалами от пола до потолка. В качестве обеденной зоны решено было использовать столешницу кухонного гарнитура, переходящую в плоскость подоконника, и подходящие по высоте полубарные стулья. Чтобы разместить всю необходимую кухонную технику, решено было выдвинуть встроенный холодильник в зону прихожей, а со стороны прихожей продолжить получившийся выступ шкафом для хранения вещей. В спальне 6.6кв.м. получилось разместить полноценную двуспальную кровать и систему хранения над ней. Вход в спальню из гардеробной также решили сделать через мебельную дверь. В качестве декора над изголовьем кровати в спальне и над диваном в зоне гостиной использованы объемные картины с геометрическими формами, специально созданные для нашего объекта художником. В проходной гардеробной получилось разместить как глубокую секцию для хранения вещей на плечиках, так и секцию для обуви и выдвижных ящиков. В компактной ванной комнате площадью 3.3кв.м. разместили душевую зону с перегородкой из стеклоблоков, умывальник, стиральную машину глубиной 400мм и электрический полотенцесушитель. Цвет для покраски мебели был максимально близко подобран к цвету керамогранита, а применение подсветки на мебели и зеркале позволило сделать интерьер более воздушным, несмотря на скромную площадь помещения. Благодаря теплой цветовой гамме в отделке квартиры и температуре 3000К, используемой для всех осветительных приборов, получилось создать теплую и уютную атмосферу даже в таком небольшом пространстве. Фотограф Наталия Русских
35 фотографий



































