Рабочий проект дома у деревни Зенькино Истринского района Московской области.
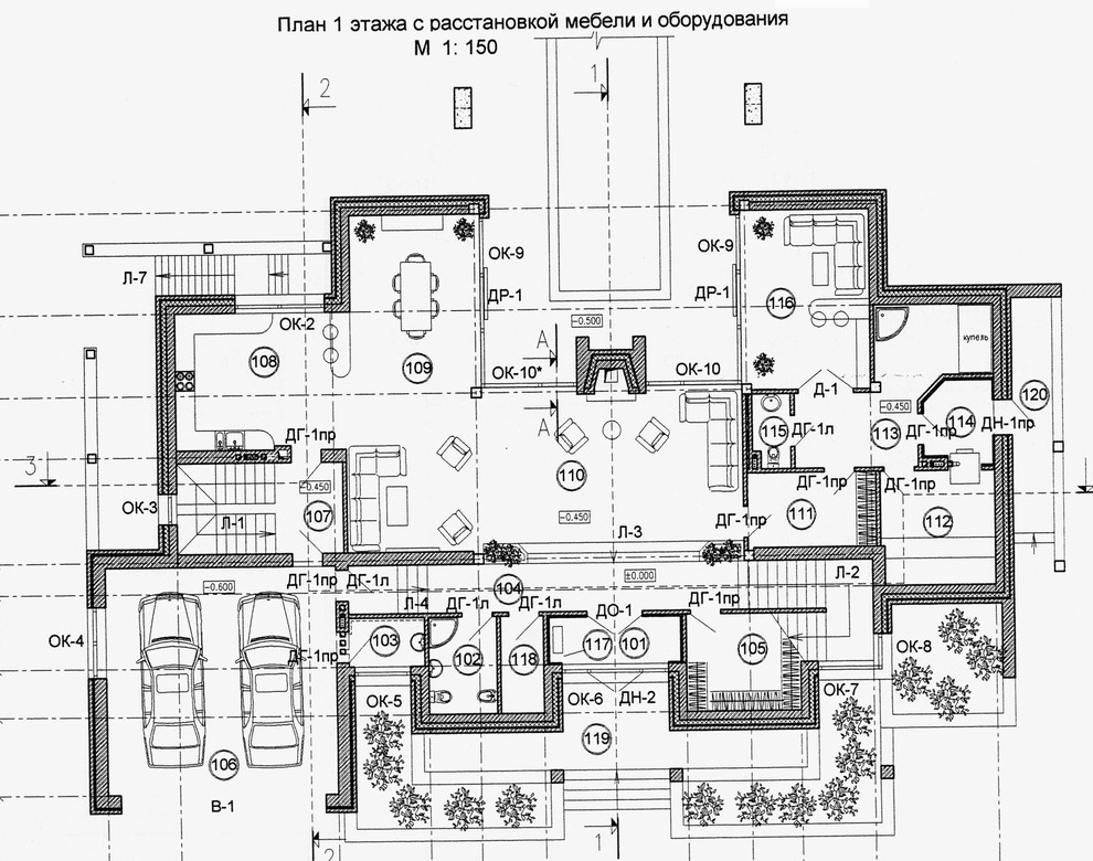
Рабочий проект индивидуального 2-х этажного коттеджа в Истринском районе Московской области у деревни Зенькино выполнен по техническому заданию застройщика. В настоящее время дом построен и заселён.
Год реализации: 2018
Стоимость проектирования: 1 050 000 ₽
10 фотографий










