logo
Войти
Профиль пользователя

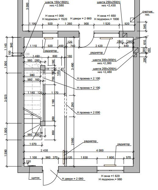
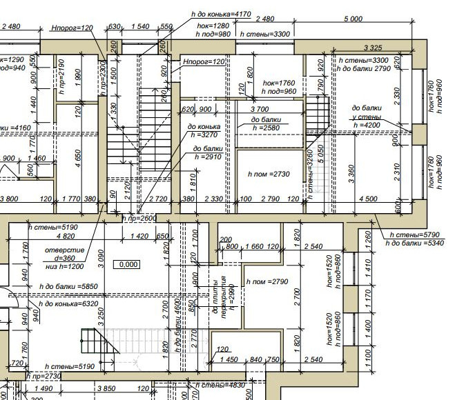
рабочие чертежи: обмерочные планы

Год реализации: 2020
photo

3 фотографии

рабочие чертежи: обмерочные планы
рабочие чертежи: обмерочные планы
рабочие чертежи: обмерочные планы
рабочие чертежи: обмерочные планы
рабочие чертежи: обмерочные планы
рабочие чертежи: обмерочные планы
Фоновое изображение профиля Draw up
Фото профиля Draw up

Draw upDraw up

0

0 отзывов

Архитекторы

Контакты

г. Владимир

Все проекты

рабочие чертежи: электрика

рабочие чертежи: развертки

рабочие чертежи: потолки

рабочие чертежи: планы мебели

Смотреть все
Флатика
О насМы в прессеFAQКонтактыМатериалы

«Флатика» в соцсетях:

ПинтерестМаксВкДзенTelegramTelegram Pro
Pro
Instagram

Продукт компании Meta, признанной экстремистской организацией, деятельность которой запрещена в РФ

Пользовательское соглашениеПолитика в отношении обработки персональных данныхКарта сайта

© 2026 Flatica

ФотоЭкспертыСтатьи